Springe auf Hauptinhalt Springe auf Hauptmenü Springe auf SiteSearch
WERBUNG
WERBUNG
WERBUNG

Raumkühlung mit dem Fußboden – Unten cool bleiben

Sicherlich können Fußboden, Wand und Decke genutzt werden, um die Räume eines Gebäudes zu kühlen. Der Fußboden ist hierfür aber besonders geeignet. Dient er mit seiner Fußbodenheizung im Winter als Wärmequelle, liegt die Heizung in den Sommermonaten brach. Sie bietet sich also geradezu an, dann als Kühlung eingesetzt zu werden. Wie das mit wenig Aufwand realisiert werden kann, beschreibt dieser Beitrag.
.

.
Die Sommer werden immer heißer
Schlagwörter wie Jahrhundertsommer und Hitzewelle sowie immer neue Hitzemeldungen in den Me­dien teilen uns mit, dass wir jetzt und in Zukunft mit diesem Wetter leben müssen. Kreislaufprobleme bis hin zu Hitzeschlägen mit Todesfolge trüben den sommerlichen Spaß. Vor Hitze kann der menschliche Körper nicht geschützt werden. Es liegen Empfehlungen vor, Flächenheizungs- und Kühlungssysteme in Krankenhäusern zu nutzen. Was für kranke Menschen Vorteile bringt, kann für alle anderen nicht schlecht sein. Wenn es kalt ist, wird sich warm angezogen oder ein beheiztes Gebäude betreten. Heizungstechnisch sind die Gebäude unter Kontrolle. Die Gebäudedämmung birgt im Sommer allerdings das Risiko, dass die Wärme das Haus nicht mehr verlässt. Man spricht hier vom „Themoskannen-Effekt“. Sonneneinstrahlung über Fensterflächen sowie die Wärme, die von Personen, der Beleuchtung und von Geräten abgegeben wird, kommen hinzu. In der heutigen Planung eines Neubaus oder Renovierung eines Altbaus sollten Überlegungen zur Kühlung folglich nicht fehlen.
.

.
Heizlast ist maßgeblich
Da eine Flächenheizung überwiegend Wärme an den Raum abgibt, liegt der Schwerpunkt in der Beheizung des Gebäudes. Die Heizlastberechnung erfolgt nach DIN EN 12831. Grundlage für die Flächenheizung ist eine nach DIN EN 1264  berechnete und hydraulisch einregulierte Flächenheizung. Die Wassermengen sind aufgrund der Ven­tileinstellung im Heiz- und Kühl- Lastfall identisch. Die Auslegung erfolgt mittels Software mit produktspezifischen Daten der Hersteller und Ventileinstellwerten. Werkvertraglich geschuldet wird dieser hydraulische Abgleich nach VOB. Die Kühllast wird für eine Raumtemperatur von 26°C nach VDI 2078 berechnet. Sie dient der Beurteilung, ob zusätzlich zu einer Flächenkühlung im Boden weitere Flächen (Wand, Decke) aktiviert werden müssen oder ob eine abgespeckte Klimaanlage (Gewerbebauten) zu ergänzen ist. Bei Ein- und Zweifamilienhäusern liegen genügend Erfahrungen vor. Hier wird auf eine aufwendige Kühllastberechnung verzichtet. Notfalls steht ein vereinfachtes Berechnungsverfahren zur Verfügung. Eine ausreichende äußere Verschattung des Gebäudes sollte selbstverständlich sein. Umfangreiche Berechnungen der Kühlleistungen mit unterschiedlichem Fußbodenaufbau der Bodenkühlung und variierenden Rohrabständen mit Messungen wurden veröffent­licht. Hier finden sich Auswahlkriterien zu Auslegung und Regelung einer Flächenkühlung. Die Kühlleistungen liegen im Bereich von 20 bis 40W/m², bei direkter Sonneneinstrahlung bei über 100W/m².
.

.
Sparsam mit Estrich
Die Spreizung der Vorlauf- und Rücklauftemperatur sollte möglichst gering (5 K) angesetzt werden. Um akzeptable Kühlleistungen zu erzielen wird mit geringen Rohrabständen geplant. Gute Ergebnisse werden mit Rohrabständen von 100 mm und 150 mm erzielt. Darüber hinaus sind diese Verlegeabstände wirtschaftlich vertretbar. Eine Vergrößerung des Rohrabstandes von 150 mm auf 300 mm lässt die Kühlleistung um 20 bis 30 % sinken. Die Rohrdimension 17 x 2 mm sorgt für geringe Druckverluste bei einem anzustrebendem maximalen Massenstrom je Heizkreis und für nicht zu viele Heizkreise. Darüber hinaus hat der Rohrdurchmesser Einfluss auf die Kühlleistung. Kleinere Rohrdurchmesser verringern, bei gleicher Estrichüberdeckung, die Kühlleistung der Flächenkühlung. Die DIN EN 1991-1-1 legt die Nutzlasten für Wohnbauten, Nichtwohnbauten und Industriebauten fest. Die Estrichüberdeckung bei Zementestrich von 45 mm über Rohr im Wohnungsbau (2 kN/m²) sollte auf normgerechte 30 mm reduziert werden. Hier werden bei 150 m² Flächenheizung bzw. -kühlung rund 4,5 t Estrich gespart. Noch gravierender sind die Estricheinsparungen bei einer Nutzlast von 5 kN/m² in gewerblichen und öffentlichen Bauten. Hier werden normativ 75 mm Estrichüberdeckung über Rohr gefordert. Bei einer normgerechten Reduzierung auf 45 mm (bei 5 kN/ m²) freut sich auch der Statiker über Einsparungen von etwa 30 t Masse bei 500 m² Heizfläche. Interessant ist auch die geforderte Nutzlast von 3 kN/m² bei 65 mm Estrichüberdeckung über Heizrohr. Wird hier die zuvor beschriebene Reduzierung auf 45 mm Estrichüberdeckung über Heizrohr genutzt, so werden nicht nur etwa 20 t bei 500 m² Heizfläche eingespart, sondern gleichzeitig die Nutzlast von 3 kN/m² auf 5 kN/m² erhöht. Hier bieten die Hersteller von Flächenheizungssystemen Prüfberichte für Lasten mit 2 kN/m² und 5 kN/m² nach DIN 18560-2 [9] an. Dass hier die Flächenheizung im Winter flink ist, versteht sich von selbst.
.

.
Bodenbelag „durchlässig“ wählen
Da die Estrichüberdeckung die Kühlleistung beeinflusst, sollte so wenig Estrich wie möglich das Heiz- und Kühlrohr überdecken. Die Bodenbeläge nehmen ebenfalls Einfluss auf die Kühlleistung, können jedoch frei gewählt werden. Es empfiehlt sich den maximal zulässigen Wärmeleit­widerstand von Rλ,B = 0,15 m² K/W nach DIN EN 1264 auf Rλ,B = 0,10 m² K/W zu reduzieren. Ein zu hoher Wärmeleitwiderstand des Fußbodenbelags verringert die Kühlleistung. Ein Koordinationsgespräch vor Einbau der Flächenheizung mit den beteiligten Gewerken (Heizungsbauer, Estrichleger, Oberbodenleger, Architekt, Fachplaner) sorgt für einen reibungslosen Ablauf. Es empfiehlt sich die Broschüre „Schnittstellen­koordination bei beheizten Fuß­bodenkonstruktionen“ des BVF heran zu ziehen.
.
Woher kommt das kalte Wasser?
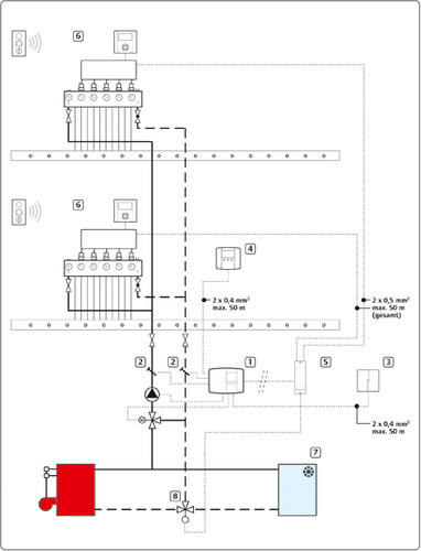
Grundsätzlich gibt es mehrere Möglichkeiten kaltes Wasser zu „gewinnen“ und durch die Rohr­register der Bodenkühlung zu führen. Sollte die Flächenheizung an einen eigenen Wärmeerzeuger angeschlossen sein, so kann ein Kaltwassersatz ergänzt werden. Diese Kältemaschine erzeugt, durch elektrischen Antrieb und mittels eines Kältekreislaufs, kaltes Wasser. Über ein Umstellventil wird die Umschaltung von Heizen auf Kühlen durch die Regelung vorgenommen. Befindet sich eine Klimaanlage im Gebäude, kann das Vorlaufwasser für die Flächenkühlung dem Rücklauf des Wärmetauschers, der die Luft kühlt, entnommen werden. Der Nutzungsgrad der Kältemaschine wird dadurch erhöht. In eher seltenen Fällen werden Saug- und Schluckbrunnen zu
einer Grundwasser führenden Schicht gebohrt. Eine Tauchpumpe befördert das Grundwasser nach oben. In vielen Gebieten werden diese Bohrungen nicht mehr genehmigt. Eine sehr umweltfreundliche Variante versorgt die Bodenkühlung mit kaltem Wasser aus einem vertikalen Erdreichwärmetauscher. Ab 10 bis 15 m Tiefe werden im Erdreich Temperaturen von etwa 10 °C gemessen. Hier werden eine oder mehrere Erdbohrungen bis zu maximal 100 m Tiefe vorgenommen und eine Sonde (Doppel-U-Rohrsonde aus PE oder besser PE-Xa nach Verfahren Engel eingelassen. Die verlegten Kunststoffrohre werden in das Gebäude eingeführt und mit der Heizungsanlage über einen Wärmetauscher verbunden. Anschließend wird das Bohrloch mit einem flüssigen, gut wärmeleitenden Füllstoff verfüllt. Dieses System ist ein geschlossener Kreislauf, der mit einem Gemisch aus Wasser und Frostschutz gefüllt wird.
.
Flächenkühlung – gut geregelt
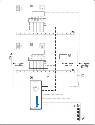
Im Kühlfall sollte die Raumtemperatur und Raumfeuchte überprüft werden. Über diese beiden Parameter wird der Taupunkt ständig berechnet. Hierdurch wird eine Kondensation in Form von Schwitzwasser auf der Flächenkühlung vermieden. Dazu wird ein Fühler in einem Referenzraum vorgesehen. Zu empfehlen sind weitere regelungstechnische Absicherungen. Hier kann als zusätzliche Messgröße die Bodentemperatur über einen Bodenfühler überwacht werden. Eine andere Möglichkeit ist die Überwachung der Kondensaterfassung am Boden mittels Taupunktfühler an sensiblen Stellen des Flächenkühlungssystems. Nach EnEV besteht die Pflicht, jeden Raum einzeln mit einem Raumregler auszurüsten. Ein weiteres Argument für eine Einzelraumtemperaturregelung begründet sich mit den Komfort­ansprüchen der Nutzer. Niemand möchte in allen Räumen eines Gebäudes die gleichen Innentemperaturen. Untergeordnete oder selten genutzte Räume werden tiefer geregelt. Andere Räume, wie beispielsweise Bäder, werden individuell höher eingestellt. Die Einzelraumregelung muss für die Kühlung geeignet sein. Die Regelung sollte eine Option beinhalten, Räume, die der Nutzer nicht kühlen möchte, wie z. B. Bäder, auszuschließen. Hinsichtlich einer Tauwasserbildung bieten Heizkreisverteiler aus Kunststoff Vorteile gegenüber solchen aus Metall. Denn der Kunststoff bietet hier ähnliche Eigenschaften wie eine Kältedämmung.
.
Flächenkühlung als Luxus?
Der Bauherr investiert sein Geld in ein Gebäude, welches er mindestens 50 Jahre lang nutzen möchte. Deshalb sollte er sich über die Qualität der Flächenheizung und -kühlung (Rohr, Dämmung, Regelung, Wärmepumpe usw.) gut informieren. Die Mehrkosten, die entstehen, um eine Flächenheizung auch als Kühlung zu benutzen, sind gering. Die meisten Komponenten sind vorhanden. Benötigt wird die geeignete regelungstechnische Ausstattung und kaltes Wasser. Die Flächenkühlung amortisiert sich in Verbindung mit einer Wärmepumpe (Sole-Wasser) mit passiver Kühlung schon nach weniger Jahren. Passive Kühlung bedeutet, dass an der Wärmepumpe vorbei, über einen Wärmetauscher das warme Rücklaufwasser der Flächenkühlung über die Erdsonden ins Erdreich befördert wird. Durch den Wärmeeintrag ins Erdreich erhöht sich dort die Temperatur. Wird dieses erhöhte Temperaturniveau im Winter für die Wärmepumpe zum Heizen verwendet, erhöht sich damit auch die Jahresarbeitszahl (Nutzungsgrad) der Wärmepumpe. Man spricht vom Prinzip des Gebens und Nehmens.
.
Ein angenehmes Raumklima
Die Innentemperaturen dürfen im gewerblichen Bereich nicht ins Unermessliche steigen. Die Arbeitsstättenverordnung (ASV) und die Arbeitsstättenrichtlinien (ASR) begrenzen die
Innentemperatur auf 26°C (bei 32°C Außentemperatur). Gerichtsurteile gewähren eine höhere Innentemperatur, fordern aber gleichzeitig, dass diese 6K unter der Außentemperatur liegt. Mit einer Flächenkühlung kann keine Strichtemperatur gefahren werden. Die langjährige Erfahrung zeigt, dass die 6K unter Außentemperatur eingehalten werden. Die thermische Behaglichkeit eines Menschen wird von folgenden Faktoren beeinflusst:
.
– Bekleidung
– Tätigkeit
– Lufttemperatur
– mittlere Strahlungstemperatur
– Luftgeschwindigkeit
– Feuchtigkeit
.
Das Maß für die Bewertung der Raumtemperatur ist die operative (empfundene) Temperatur. Diese liegt im Kühlfall niedriger als die gemessene Lufttemperatur. Labor- und Feldmessungen zeigen einen geringen vertikalen Temperaturunterschied (unter 3 K, oftmals unter 2 K) und damit eine hohe Behaglichkeit. Der Mensch steht durch Konvektion, Atmung, Verdunstung und Strahlung im Wärmeaustausch mit der Umgebung. Die „sanfte Strahlung“ lässt die Flächenkühlung so angenehm erscheinen. Vergleichbar ist das Empfinden mit den kühlen Flächen alter und mit dicken Mauern gebauter Gebäude (Kirchen, Burgen) oder Kellerräumen bei sommerlichen Temperaturen. Ganz so kühl wirkt die Flächenkühlung nicht, da sich hier nur der Boden kühl präsentiert und im physiologisch angenehmen Bereich auf mindestens 20°C Oberflächentemperatur begrenzt wird.
.
Renovierung im Altbaubestand
Bei einer Renovierung muss genommen werden, was an Flächenheizung vorhanden ist. Um die Kühlleistung zu beurteilen, kann mittels Thermofolie oder Thermografieaufnahmen im Winter bei aufgeheizter Flächenheizung der früher verlegte Rohrabstand festgestellt werden. Die Umbaumaßnahmen beschränken sich auf das Nachzurüsten der regelungstechnischen Einrichtungen und der Kältequelle. Sollte eine Radiatorenheizung vorhanden sein und noch Heizkörper an den Wänden hängen, so können diese demontiert werden. Auf dem vorhandenen Boden kann ein Renovierungssystem mit 15 mm Gesamtaufbau aufgebracht werden. Als alter Boden kann vorhanden sein:
.
– Estrich
– Fliesenbelag
– Betonboden
– Gussasphaltestrich
– Holzdielen
– Verlegeplatten
.
Verfüllt wird dieses Minisystem, das nur wenige Millimeter Rohrüberdeckung hat, mit handelsüblichen Ausgleichsschichten (Spachtelmassen, Nivellierschichten). Durch die geringe Rohrüberdeckung werden akzeptable Kühlleistungen erzielt. Sollen Trockenestrichplatten anstelle von Ausgleichsschichten und Estrich als Lastverteilschicht verlegt werden, wird hier ein 25 mm hohes Trockenbausystem mit Wärmeleitlamellen aus Aluminium mit Sollbruchstellen zur werkzeuglosen Verarbeitung angewendet. Das Trockenbausystem kann auf einem Rohbetonfußboden, einem Fliesenbelag oder einer
Holzbalkendecke verlegt werden. Die geringe statische Belastung (ca. 25 kg / m²), die niedrige Höhe (ca. 50 mm inklusive Trockenestrichplatte) und die schnelle Regelfähigkeit aufgrund der massearmen Lastverteilschicht zeichnen das System aus.
.

.
Vorteile der Flächenkühlung
Als bauwerksintegrierter Bestandteil zählt die Flächenkühlung zu den Systemen der „stillen Kühlung“. Da hier keine Ventilatoren eingesetzt werden, die gekühlte Luft transportieren, entstehen weder Zugerscheinungen noch störende Geräusche und Staubverwirbelungen. Deshalb wird diese Art der Kühlung, die mit etwa 80 % Strahlungsanteil arbeitet, auch als „sanfte Kühlung“ bezeichnet. Wie bei der Flächenheizung wird die freie Raumgestaltung – ohne Platzverlust – sehr geschätzt. Reinigungsarbeiten werden im Zuge der gewöhnlichen Hausarbeit – ohne Mehraufwand – mit erledigt.
.
Heute stehen Gesamtkonzepte von der Förderung der Wärme und Kälte, mit allen regelungstechnischen Komponenten, Umschaltung der Einzelraumregelung bis zur Flächenheizung und -kühlung zur Verfügung. Langjährige Erfahrungen mit vielen realisierten Gebäuden, ­eine bewährte Technik und ein angenehmes Raumklima zu allen vier Jahreszeiten, warten somit auf den Nutzer.

WERBUNG