Springe auf Hauptinhalt Springe auf Hauptmenü Springe auf SiteSearch
WERBUNG
WERBUNG
WERBUNG
Anbindeleitungen und Verteiler

Merkblatt zu Fußbodenheizungen

Mit diesem Merkblatt möchten die beteiligten Verbände den in der Baupraxis tätigen Unternehmen einige wichtige Hinweise geben. Der Fokus ist dabei auf kostensparendes Bauen, wirtschaftlichen Betrieb und thermische Behaglichkeit gerichtet. Je nach Bauvorhaben, Grundriss, Lage des Verteilers und Verlegeplanung ist die Situation allerdings unterschiedlich und von daher kann es keine „normativen“ Vorgaben geben. Es wird in jedem Falle empfohlen, einen Heizungsfachbetrieb einzuschalten.

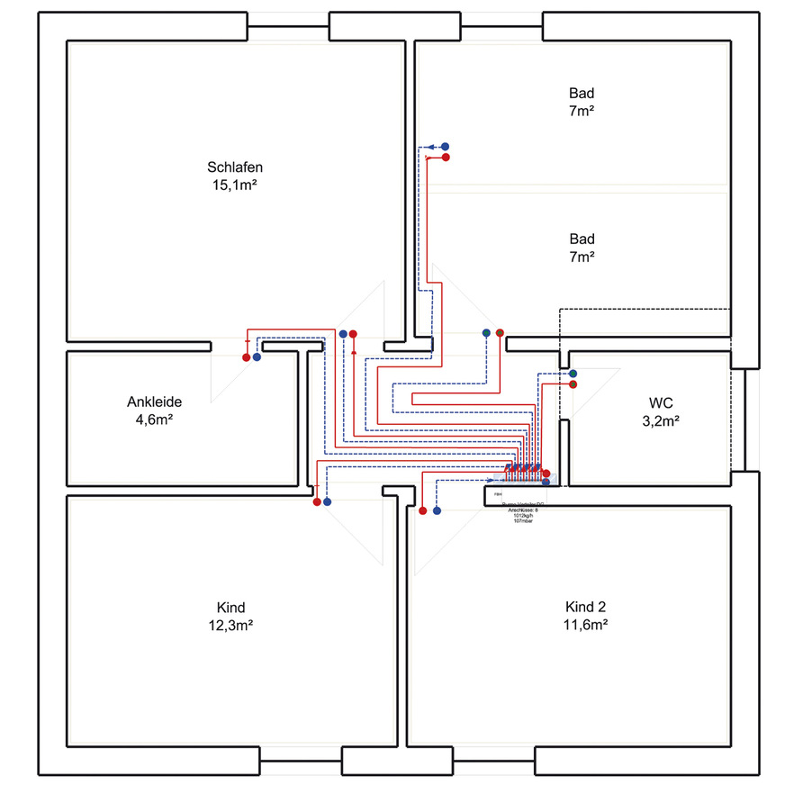
Gerade bei der Positionierung des Verteilers ist es wichtig, dass dieser möglichst zentral ist‘ unterstreicht Dr. Matthias Wagnitz vom ZVSHK ein wesentliches Element der Vermeidung von unnötig langen Anbindeleitungen und damit eventuell unerwünschter Wärmeabgabe.

Im Grundriss kann man das Thema des Merkblattes gut erkennen.

Bild: Purmo

Im Grundriss kann man das Thema des Merkblattes gut erkennen.

Die 6m²-Regelung aus dem Gebäudeenergiegesetz in § 63 (1) (übernommen aus der EnEV) führt manchmal zu Unsicherheit, obwohl es sich um eine technisch sinnvolle Ausnahmeregelung handelt. Dieses Merkblatt schafft Klarheit für den Bauherrn und die beteiligten Gewerke.‘ ergänzt Axel Grimm vom BVF.

Konkret beschäftigt sich das Merkblatt mit diesen Inhalten: 1. Planung einer Fußboden­heizung

2. Positionierung des Heizkreisverteilers

3. Leitungsführung der Anbindeleitungen vom Verteiler aus

4. Dämmung der Anbindeleitung

5. Ein eigener regelbarer Heizkreis – die 6 m²-Regel

6. Minimale Estrichüberdeckung nach DIN 18560-2

7. Erwärmung eines untergeordneten Raumes

8. Untergeordnete Räume und 15 °C Innentemperatur

9. Schnittstellenkoordination

10. Bildliche Darstellung und Begriffsdefinition

Dass sich die Verbände gemeinsam des Themas angenommen haben, zeigt die Relevanz. Durch die kompakte und praxisnahe Umsetzung in einem technischen Merkblatt helfen wir dort, wo es gebraucht wird und geben den Baubeteiligten konkrete Hilfe an die Hand‘ berichtet Ralf Kiryk vom BDH über das gemeinsam erarbeitete Papier.

Das technische Merkblatt ‚Lage des Verteilers und Verlegung von Anbindeleitungen bei Fußbodenheizungen‘ ist ab sofort auf den Seiten der beteiligten Verbände zum
Download verfügbar.

Viega hat bereits einen eigenen Vorschlag zur Problemlösung vorgestellt und hat es damit ins Merkblatt geschafft

Bild: Viega

Viega hat bereits einen eigenen Vorschlag zur Problemlösung vorgestellt und hat es damit ins Merkblatt geschafft

Zitat zu Punkt 1: „Planung“

In der Planung ist eine Auslegungssoftware nach den Normenreihen DIN EN 12831 und DIN EN 1264 zur Bemessung der Wärmeabgabe der Anbindeleitungen zu benutzen.

Kommentar der Redaktion: Die Zusammenhänge ließen sich ohne Rechnereinsatz nur sehr bedingt schätzen. Zur Vermeidung von anschließenden Streits ist es daher sehr sinnvoll Software zur Planung einzusetzen.

Zitat zu Punkt 2: „Position Heizkreisverteiler“

Im typischen Wohnbau mit normaler Wohnungsgröße sollte für den Heizkreisverteiler gemäß DIN EN 1264 ein möglichst sinnvoller Standort gewählt werden.

Kommentar der Redaktion: Guter Hinweis und wichtig im Zusammenhang mit der Abstimmung zwischen Bauherrn und Heizungsbauer.

Zitat zu Punkt 3: „Leitungsführung“

Es gibt im Rahmen der Leitungsführung verschiedene Möglichkeiten zur Reduzierung der Wärmeabgabe:

die Wahl eines sinnvollen Verteilerstandortes,

ggf. einen zweiten Verteiler zu verwenden evtl. mit zweiter Steigleitung,

den Verteiler unterhalb des Fußbodens, z.B. Geschossdecke, zu positionieren,

Anschluss benachbarter Räume durch die Wand,

Nutzung der rückseitigen Ausfädelmöglichkeit aus dem Verteilerschrank.

Kommentar der Redaktion: Sehr pragmatische und daher gute Ansätze von Profis für Profis

Auch Kermi liefert Ansätze zur Problemlösung und taucht ebenso im Merkblatt auf

Bild: Kermi

Auch Kermi liefert Ansätze zur Problemlösung und taucht ebenso im Merkblatt auf

Zitat zu Punkt 4: „Dämmung Anbindeleitung“

Die Möglichkeiten zur Realisierung der Maßnahmen sind immer von der Gesamtkonstruktion des Bodenaufbaus abhängig. Folgende Aspekte sind zu berücksichtigen:

verfügbare Gesamtaufbauhöhe der Bodenkon­struktion

Dicke der Dämmschichtlagen

Wärmedämmanforderungen

Schallschutzanforderungen

Mindestüberdeckung des Estrichs

Wahl des Estrichs und ggf. Verwendung von
Sonderlösungen

Kommentar der Redaktion: Aufgrund der Kosten sollte dieses Thema zwischen Bauherrn und Auftragnehmer ebenfalls sehr frühzeitig angesprochen und schriftlich fixiert werden. Die Kosten insbesondere für Sonderlösungen können erheblich sein.

Zitat zu Punkt 5: „6 m²-Regel“

Es empfiehlt sich daher, in schriftlicher Absprache mit dem Auftraggeber, Architekten und Fachplaner bei einer Heizlast ≤ 150 W auf einen eigenen Heizkreis zu verzichten.

Kommentar der Redaktion: Dieses Thema sollte zwingend zwischen Bauherrn und Auftragnehmer schriftlich abgearbeitet werden.

Zitat zu Punkt 6: „Estrichüberdeckung“

Nach DIN 18560-2 Tabelle 1 (Nutzlast bis max 2 kN/m²) beträgt die minimale Estrichüberdeckung 35 mm bei Calciumsulfat-Fließestrich.

Kommentar der Redaktion: Das lässt sich von den beteiligten Handwerkern nur einhalten, wenn alle Arbeiten und Dämmmaßnahmen sauber aufeinander
abgestimmt sind.

Zitat zu Punkt 7 und 8: „Erwärmung untergeordneter Räume“

Eine Innentemperatur von zum Beispiel 15°C für einen innenliegenden Flur wäre bei ansonsten auf 20°C temperierten, angrenzenden Räumen nur mit aktiver Kühlung
zu erreichen.

Kommentar der Redaktion: Ein weiser Hinweis, der hoffentlich Diskussionen über diesen Fakt abwürgt.

Zitat zu Punkt 9: „Schnittstellenkoordination“

Es wird auf die Checklisten in der Schnittstellenkoordation Bestand/Neubau des Bundesverband Flächenheizungen und Flächenkühlungen e.V. verwiesen.

Kommentar der Redaktion: Ebenfalls kostenlos herunterladbares und hilfreiches Dokument (siehe auch QR-Code dieses Berichts).

Zitat zu Punkt 10: „Begriffsdefinition“

Untergeordnete Räume = unbeheizte oder Räume mit niedriger Auslegungsinnentemperatur (z.B. 15°C), z.B. Flur, Abstellkammer, Hauswirtschaftsraum (der Wohneinheit)

Kommentar der Redaktion: Damit die Beteiligten über das gleiche Vokabular verfügen sind Definitionen hilfreich.

WERBUNG

Tags