Die Änderung gestattet in diesem Punkt zwar mehr planerische Freiheiten und bringt Rechtssicherheit, sollte aber nicht nur als günstige Gelegenheit gesehen werden, die Installationskosten zu senken. Auch in kleinen Räumen macht eine Einzelraumregelung Sinn, denn damit lassen sich Energieeffizienz und Komfort für die Bewohner steigern.
Ende der Irritationen?
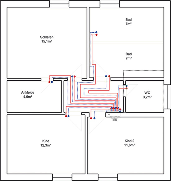
„Die Forderung der Einzelraumregelung bei Flächenheizungen führte in der Vergangenheit häufig zu Irritationen“, sagt Olaf Kloetzel, Produktmanager beim Heiztechnik-Spezialisten Purmo. Die Installation einer Fußbodenheizung etwa in Fluren war immer eine rechtliche Grauzone, denn die DIN EN 1264-4 fordert eine möglichst zentrale Anordnung des Heizkreisverteilers – in der Regel also im Flur. Flure sind aber häufig sehr klein und schon mit den Leitungen der anderen Heizkreise belegt, sodass kaum Platz für einen eigenen vorhanden ist. Also wurden die Anbindeleitungen teilweise unter der Trittschalldämmung verlegt, was jedoch zu Problemen beim Schallschutz, der Entlüftbarkeit der Heizkreise oder der Aufbauhöhe geführt hat. Die ordnungsgemäße Installation einer Flächenheizung in kleinen Räumen, in denen die Heizkreisverteilung verlegt ist, kann also sehr aufwendig sein und zu den genannten Mängeln führen, für die letztlich Handwerker und Planer haften. Und das für einen regelbaren Heizkreis, der aufgrund einer geringen benötigten Heizlast wahrscheinlich sowieso nie betrieben wird.
Rechtssicherheit
Der Gesetzgeber hat mit der EnEV für diese Fälle nun Rechtssicherheit geschaffen: Räume mit weniger als 6 m2 Nutzfläche sind seit dem 1. Mai von der Pflicht zur Einzelraumregelung befreit. In kleinen, zentralen Fluren ist laut Gesetz künftig kein eigener Heizkreis mehr erforderlich. Je nachdem wie der Raum genutzt wird, kann nun fallweise darüber entschieden werden, ob eine separate Einzelraumregelung erfolgen soll. Sie ist somit künftig Abwägungssache. Dabei gilt es aber die Faktoren Energieeffizienz, Behaglichkeit und Komfort zu berücksichtigen.
Was Verzicht bedeuten kann
„Bei einem Verzicht auf die Einzelraumregelung sollte gerade bei Fluren berücksichtigt werden, dass keine Überheizung durch durchlaufende Anbindeleitungen der anderen Räume stattfindet“, sagt Kloetzel. Eine durchschnittliche Wohnung verfügt über etwa sieben Heizkreise: 14 Anbindeleitungen verlaufen also durch einen Flur von 2 bis 3 m2. Bei dieser Leitungsdichte, einem effektiven Verlegeabstand von 100 mm und einer Systemtemperatur von 35/28/20 °C ergibt sich eine Heizleistung von circa 40 bis 50 W/m². Die Heizlasten bei innenliegenden Räumen liegen aber in der Regel nur zwischen 10 und 20 W/m². Der Raum wird also überheizt. Die DIN EN 12831 schlägt für Nebenräume eine Norminnentemperatur von 15 °C vor. Das ist jedoch kaum umsetzbar, da die angrenzenden Räume mit Innentemperaturen von 20 bis 22 °C ausgelegt sind. Bei innenliegenden, unbeheizten Nebenräumen führt das zu Temperaturen um die 20 °C. Es empfiehlt sich daher, solche Räume mit einer Norminnentemperatur von 20 °C zu definieren, um so einer eventuellen Mängelrüge zu entgehen.
In Räumen mit vielen durchlaufenden Leitungen und geringen Heizlasten ist es zudem erforderlich, diese Leitungen zu dämmen und damit die Wärmeabgabe zu verringern. Schon die Verlegung der Anbindeleitungen in einem Well- oder Schutzrohr verringert die Wärmeabgabe um bis zu 40 %. Bei hohen Systemtemperaturen oder sehr geringen Heizlasten kann es aber auch erforderlich werden, einen dünnen Dämmschlauch zu verwenden. Die Dämmung der Leitungen sollte vor der Installation mit dem Kunden besprochen und vertraglich festgehalten werden, um rechtliche Sicherheit zu gewährleisten.
Zusammenfassung
Die aktuelle Änderung der EnEV bringt letztlich größere planerische Freiheiten und mehr Rechtssicherheit in der Ausführung. Eine Einzelraumregelung ist aber je nach Raumnutzung weiterhin sinnvoll – auch wenn dadurch die Installationskosten steigen. In puncto Energieeinsparung und Komfort ist es nämlich absolut vernünftig, auch in kleinen oder untergeordneten Räumen einen eigenen regelbaren Heizkreis einzuplanen. Der Sollwert der Raumtemperatur kann damit in jedem Zimmer individuell nach Nutzeranforderung behaglich geregelt werden. An dem Raumregler, wie zum Beispiel dem Tempco Touch von Purmo, können verschiedene Zeitprogramme eingespeichert werden, was zu einer sparsamen, weil individuellen Beheizung führt. Das schont nicht nur die Umwelt, sondern auch den Geldbeutel. Die Änderung der EnEV sollte daher nicht als Möglichkeit zur Installationskostenreduktion missverstanden werden.
 
 Bild: Purmo
 
     
     
     
     
     
     
    