Das Risiko einer Verkeimung von Trinkwasser aufgrund mangelnder Temperaturhaltung und Stagnation in überdimensionierten Rohrleitungssystemen können Installateure bereits mit der Auswahl geeigneter Installationsarten weitgehend vermeiden und damit die bestmöglichen Randbedingungen für eine nachhaltige Trinkwasserhygiene schaffen. Dabei zeigt sich, dass die alleinige Fokussierung auf Zeta-Werte einzelner Installationssysteme nicht zum Ziel führt, optimale Randbedingungen für einen häufigen Wasseraustausch zu schaffen“. Stattdessen liegt das größte Optimierungspotenzial für Druckverluste in der Auswahl einer geeigneten Installationsart, wie die nachfolgende Untersuchung zeigt.
Ziele sind formuliert
Die Vermeidung von überdimensionierten Trinkwasserinstallationen ist das Hauptziel der neuen DIN 1988-300. Die Absenkung der Spitzenvolumenströme sowie die Verwendung produktspezifischer Mindestfließdrücke und Druckverlustbeiwerte soll dazu beitragen, dass der Wasseraustausch optimiert und die Installation damit weniger stagnationsanfällig wird. Die Forderung nach schlankeren Rohrnetzen fand auch in anderen technischen Regelwerken ihren Niederschlag. So beispielsweise in der VDI-Richtlinie 6023 – Hygiene in Trinkwasserinstallationen. Darin heißt es: „Überdimensionierungen sind sowohl bei Trinkwasserleitungen als auch bei Trinkwasserspeichern und Apparaten zu vermeiden.“
Zeta-Werte im Fokus
Während der inzwischen abgeschlossenen Novellierung des Technischen Regelwerks für die Trinkwasserinstallation (TRWI) standen insbesondere die Druckverlustbeiwerte von Form- und Verbindungsstücken immer wieder im Fokus. Anhand der nachfolgend vorgestellten Prüfstandmessung und dem in der neuen DIN 1988-300 vorgeschlagenen Ringleitungsbemessungsverfahren nach Hardy Cross zeigt sich allerdings, dass die Wahl der richtigen Installationsart im Stockwerk wesentlich größeren Einfluss auf den Druckverlust und auf den Wasseraustausch im Sinne hygienisch einwandfreier Installationen hat.
Durchschleif-Reihen- oder Ringinstallation?
Ziel der Planung von Stockwerksinstallationen sollte also neben der sicheren Wasserversorgung vor allem die Berücksichtigung von Hygieneaspekten sein. Was spricht für eine Reiheninstallation? Wann sind Ringinstallationen sinnvoll? Das nachfolgend dargestellte Berechnungsbeispiel einer typischen Mehrfamilienhaus-Stockwerksinstallation soll die Fragen klären, wie eine hygienisch einwandfreie Installation aussehen sollte und welchen tatsächlichen Einfluss die konstruktionsbedingt unterschiedlichen Zeta-Werte auf den Druckverlust und die Dimensionierung von Trinkwasserinstallationen haben.
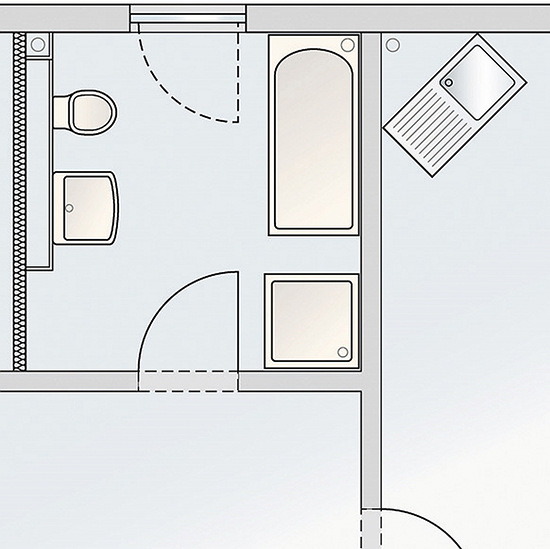
Für das in Bild 1 gezeigte Bad mit angrenzender Küche soll die Kaltwasser-Installation dazu jeweils als Durchschleif-Reihen- sowie als Ringinstallation dimensioniert werden. Der Vergleich soll Rückschlüsse auf den Druckverlust sowie die Dimensionierung und den Wasserinhalt der Installation geben.
 
 Uponor
Sinnvollerweise sollte in der Reiheninstallation der Hauptverbraucher am Strangende angeschlossen werden, um einen größtmöglichen Wasseraustausch zu gewährleisten. Dies ist für die Kaltwasserinstallation das WC. In unmittelbarer Nähe zum WC wird in den meisten Fällen die Abwasser-Fallleitung liegen, um die sichere Entwässerung zu ermöglichen. In diesem Versorgungsschacht finden sich deshalb auch die Trinkwasserleitungen, sodass die Installation vom Schacht ausgehend zunächst die Küchenspüle, Badewanne und Dusche über entsprechende Durchschleif-Wandscheiben (Bild 2) erschließt, bevor die Leitung an den Waschtisch und abschließend an den Hauptverbraucher (WC) angeschlossen wird.
 
 Uponor
Die Reiheninstallation ermöglicht den kompletten Wasseraustausch allerdings nur dann, wenn die WC-Spülung betätigt wird. Dies kann mit elektronischen Spülsystemen verschiedener Hersteller automatisiert werden, sodass der bestimmungsgemäße Betrieb aufrechterhalten werden kann.
Das Bild 3 zeigt die Berechnungsergebnisse für die Dimensionierung der Reiheninstallation. Die Dimensionierung erfordert eine Installation mit 20 x 2,25-mm-Rohr bis zur Dusche. Danach kann durchgehend 16 x 2-mm-Rohr verwendet werden. Der Wasserinhalt der Rohrleitung im Stockwerk beträgt in diesem Beispiel 3,75 l. schließt, bevor die Leitung an den Waschtisch und abschließend an den Hauptverbraucher (WC) angeschlossen wird.
 
 Uponor
Die Reiheninstallation ermöglicht den kompletten Wasseraustausch allerdings nur dann, wenn die WC-Spülung betätigt wird. Dies kann mit elektronischen Spülsystemen verschiedener Hersteller automatisiert werden, sodass der bestimmungsgemäße Betrieb aufrechterhalten werden kann.
Ringinstallation vs. Reiheninstallation
Eine Alternative zur gezeigten Reiheninstallation ist die Ringinstallation. Wie Bild 4 zeigt, liegt das WC als Kaltwasser-Hauptverbraucher direkt neben dem Einspeisepunkt der Kaltwasser-Installation. Mit einem T-Stück, etwa 0,5 m Rohr und einer Durchschleif-Wandscheibe lässt sich der Ring auf einfache Weise schließen. Die Aufteilung des Volumenstroms auf zwei Leitungen erbringt deutliche hydraulische Vorteile gegenüber der Reiheninstallation, wie die Tabelle zeigt. So sinkt der Druckbedarf der Ringinstallation (1500 mbar) bei gleichem Spitzenvolumenstrom gegenüber der Reiheninstallation (2085 mbar) um 27 % ab. Die Ring-Installation kann komplett in 16 x 2 mm ausgeführt werden, was einen deutlich geringeren Wasserinhalt von 2,75 l zur Folge hat.
 
 Uponor
Bleibt die Frage, ob sich die Dimensionierung, der Wasserinhalt und der Druckbedarf mithilfe sogenannter druckverlustoptimierter Rohrsysteme mit besonders niedrigen Zeta-Werten maßgeblich verbessern.
Für die in Bild 3 gezeigte Durchschleif-Reiheninstallation ergibt sich dann ein Druckbedarf einschießlich Mindestfließdruck der Armatur von 1790 mbar. Der Druckbedarf liegt also um 290 mbar höher als bei der in Bild 4 gezeigten Ringinstallation. Die Dimensionierung erfordert auch hier zunächst eine Installation mit 20 x 2,8-mm-Rohr bis zur Badewanne. Danach kann mit der Dimension 16 x 2,2-mm-Rohr installiert werden. Der Wasserinhalt der Rohrleitung im Stockwerk beträgt mit dem druckverlustoptimierten System 3,57 l und liegt 30 % über dem Wasserinhalt der Ringleitung. Das Beispiel zeigt, dass die alleinige Fokussierung auf einen optimalen Zeta-Wert weder günstigere Rohrquerschnitte, noch bessere Druckverhältnisse liefert.
Das Potenzial zur Druckverlustoptimierung liegt vielmehr in der Wahl der richtigen Installationsart. So ist der Einfluss des Zeta-Wertes auf den Druckbedarf in diesem typischen Beispiel mit 14 % nur halb so groß, wie der Einfluss der Installationsart (Tabelle 1).
 
 
 Die Ringinstallation ermöglicht dabei nicht nur möglichst geringe Leitungsquerschnitte und Wasserinhalte, sondern auch das komplette Durchspülen des Stockwerks-Leitungssystems von jeder Entnahmestelle in Küche und Bad. Sie entspricht daher der in der VDI-Richtlinie 6023 „Hygiene in Trinkwasserinstallationen“ definierten Forderung nach kleinstmöglichen Rohrquerschnitten und Leitungslängen.
Ein weiterer Vorteil der Installationsart zeigt sich in der höheren Versorgungssicherheit. Wenn beispielsweise abweichend von den geplanten Duscharmaturen nachträglich ein Modell mit deutlich größeren Zapfmengen, wie beispielsweise einer „Rainshower-Brausearmatur“ installiert wird, stehen deutlich größere Druckreserven zur Verfügung, um den erhöhten Spitzenbedarf abzudecken.
Ringleitungen richtig bemessen
Die Bemessung von Ringinstallationen sollte immer mithilfe des in DIN 1988-300 vorgeschlagenen Hardy-Cross-Verfahren durchgeführt werden. Dabei werden die Volumenströme im Ring abhängig von den Druckverlusten und Zapfvolumenströmen iterativ ermittelt. Das in der Uponor-HSE-Planungssoftware integrierte Verfahren ermöglicht dabei nicht nur die Bemessung anhand der ermittelten „normativen“ Spitzenvolumenströme, sondern auch eine Simulation von tatsächlichen Zapfvorgängen.
Auf dem Prüfstand
In der abschließend vorgestellten Prüfstandmessung werden Ringleitungsinstallationen verschiedener Hersteller miteinander verglichen, um auch hier den Einfluss des Zeta-Wertes von Einzelwiderständen auf den Druckverlust und die möglichen Entnahmemengen zu untersuchen.
Dazu wurde das Mehrschicht-Verbundrohrsystem von Uponor in einer typischen Badinstallation spiegelgleich neben einem System mit druckverlustoptimierten Fittings nach dem in Bild 5 dargestellten Schema installiert.
 
 Uponor
Für beide Systeme wurden über einen vorgeschalteten Druckminderer unmittelbar vor der Installation gleiche Eingangsdruckverhältnisse hergestellt. An der Badewannen-Armatur wurde eingangsseitig der noch zur Verfügung stehende Fließdruck gemessen (Bild 6). Darüber hinaus wurden in zwei Messreihen die Zapfvolumenströme beider Systeme ermittelt.
 
 Uponor
Das Ergebnis: Der Druckverlust liegt bei gleichem Eingangsdruck für das Uponor-Mehrschichtverbundrohr-System mit 50 mbar geringfügig höher als beim Zeta-Wert-optimierten System. Diese Druckreserve hat marginale Auswirkungen auf die Zapfmengen wie die Messergebnisse zeigen.
So lassen sich 120 l – beispielsweise für eine Badewannenfüllung – mit der Uponor-Installation in 10:34 min füllen, während das Zeta-Wert optimierte Rohrsystem die Badewanne 0:16 min schneller füllt. Ein in der Praxis aus Sicht des Nutzers zu vernachlässigender Unterschied.
 
 Uponor
Fazit
Potenzial zur Optimierung von Druckverlusten und der Trinkwasserhygiene in Stockwerksinstallationen bietet vor allem die Wahl der richtigen Installationsart. Durchschleif-Reiheninstallationen mit einer hohen Anzahl in Serie geschalteter Verbraucher sind auch bei Verwendung druckverlustoptimierter Fittings nicht das Optimum in Sachen Trinkwasserhygiene und Druckbedarf. Ganz im Sinne der VDI-Richtlinie 6023 liefert die Ringinstallation deutlich verbesserte Druckverhältnisse, kleinstmögliche Rohrquerschnitte und einen kompletten Wasseraustausch bei Nutzung jeder einzelnen Armatur am Ring. Der Einfluss von druckverlustoptimierten Form- und Verbindungsstücken auf die Zapfmengen liegt für eine typische Installation im Bad bei 2,6 %. In der Praxis ergeben sich für Ringinstallationen damit keine signifikanten Vorteile bei den erreichbaren Zapfraten.
 
 Uponor
DICTIONARY
Stagnation = stagnation, stagnancy 
Optimierung =  improvement, optimization 
Stockwerk = floor 
Wasserinhalt = water content 
 
     
     
  
     
     
     
     
    