Springe auf Hauptinhalt Springe auf Hauptmenü Springe auf SiteSearch
WERBUNG
WERBUNG
  • Home
  • Alle Artikel zum Thema Antiheberventil
WERBUNG

Alle Artikel zum Thema Antiheberventil

Meldungen für die SHK-Branche

-

Produkte: Green Fuels Ready - AFRISO Heizölentlüfter

Weniger Gewicht, noch mehr Zuverlässigkeit, Langlebigkeit und jetzt schon bereit für die flüssigen Brennstoffe von morgen: Der neue automatische Heizölentlüfter AFRISO FloCo-Top-2CM erfüllt höchste Ansprüche an die Technik und punktet zudem mit...

Zweistrangsystem mit zwei Öllagerbehälter

Erklär mal: Zweistrang vs. Einstrangsystem

-

Beim Zweistrangsystem wird das Heizöl durch eine Ölvorlaufleitung zum Brenner geführt. Das angesaugte, nicht verbrannte Öl wird durch eine Ölrücklaufleitung in den Tank zurückgefördert. Dabei werden die im Öl evtl. enthaltenen Luft- bzw. Gasanteile zum größten Teil mit zurückgeleitet. Das...

Ein Antiheberventil verhindert Sicher eine Sauerrei

Sauerei verhindern

-

Antiheberventile im Einsatz

Nach § 19 g Abs. 1 des Wasserhaushaltsgesetzes (WHG) wird für alle Anlagen zum Umgang mit wassergefährdenden Stoffen die Einhaltung des Besorgnisgrundsatzes auf den Gewässerschutz gefordert. Im Ergebnis einer Gefährdungsabschätzung für Heizöl-Versorgungsanlagen ist ein...

Schillernd schön, aber doch eine Katastrophe, ein Ölteppich
Prüfarmatur für Antiheberventile

Check den Schutz!

-

Bekannt ist, dass man Flüssigkeiten aus einem hochgelegenen in ein tieferliegendes Gefäß fließen lassen kann, auch wenn der höchste Punkt der Leitung dabei über dem Scheitelpunkt des oberen Flüssigkeitsspiegels liegt.

Erklär mal: Ausrüstung eines Öl-Lagerbehälters

-



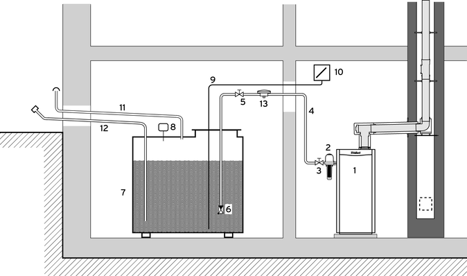
Legende


1 Ölbrenner


2 Ölfilter mit Heizölentlüfter


3 Absperrventil


4 Ölleitung (Einstrang)


5 Schnellschlusshahn


6 Saugventil


7 Öllagerbehälter


8 Grenzwertgeber


9 Messleitung


10 Ölstandsanzeiger


11 Entlüftungsleitung


12 Füllleitung


13 Membran-Antiheberventil


Füllleitung


Der Füllstutzen soll...

Versau es nicht!

-

Heizöl richtig lagern


.


Ölkatastrophen, wie am Golf von Mexiko, zeichnen ein düsteres Bild von dem, was Öl in der Natur anrichten kann. Aber auch im kleinen Maßstab wird gesündigt. Um die Sicherheit - zumindest für das Heizöllager unserer Kunden - zu beleuchten, werden einige fachliche...

Gegen Ölkatastrophen im Keller

-

Die Hebersicherung an Tanks


.


Wie verheerend die Auswirkungen von ungewolltem Ölaustritt sein können, zeigt sich leider grade auch brandaktuell. Am Golf von Mexiko wird deutlich, das ein Super-Gau nicht nur etwas für Schwarzmaler ist, sondern schreckliche Realität werden kann.


.



...

Gegen Öl­katastrophen im Keller

-

Jede Bevorratung von Heizöl in deutschen Kellern ist daher auch mit besonderer Sorgfalt und eine Menge an Sicherheitsvorschriften verbunden. Gut so, denn wer möchte schon für eine Ölkatastrophe in seiner Nachbarschaft verantwortlich sein? Zuerst einmal sollen natürlich theoretische...

Ausrüstung eines Öl-Lagerbehälters

-



Legende


1 Ölbrenner


2 Ölfilter mit Heizölentlüfter


3 Absperrventil


4 Ölleitung (Einstrang)


5 Schnellschlusshahn


6 Saugventil


7 Öllagerbehälter


8 Grenzwertgeber


9 Messleitung


10 Ölstandsanzeiger


11 Entlüftungsleitung


12 Füllleitung


13 Membran-Antiheberventil


Füllleitung


Der Füllstutzen soll...

Erklär mal: Antiheberventil

-

Nach § 19 g Abs. 1 des Wasserhaushaltsgesetzes (WHG) wird für alle Anlagen zum Umgang mit wassergefährdenden Stoffen die Einhaltung des Besorgnisgrundsatzes auf den Gewässerschutz gefordert. Im Ergebnis einer Gefährdungsabschätzung für Heizöl-Versorgungsanlagen ist ein mögliches Aushebern sicher...

WERBUNG