Springe auf Hauptinhalt Springe auf Hauptmenü Springe auf SiteSearch
WERBUNG
WERBUNG
WERBUNG

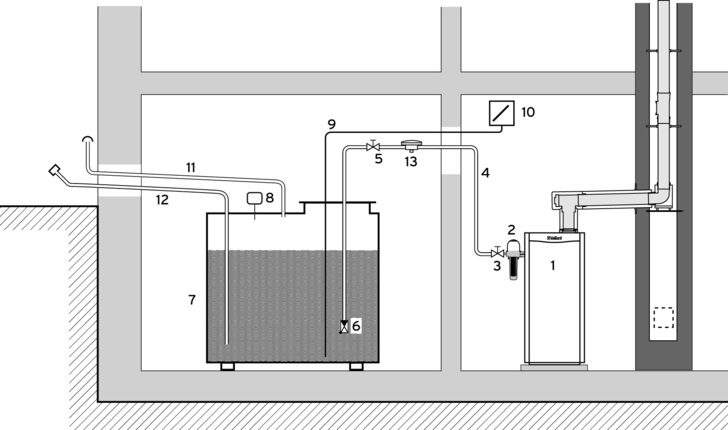
Ausrüstung eines Öl-Lagerbehälters

Ausrüstung eines Öl-Lagerbehälters Grafik: Vaillant
Ausrüstung eines Öl-Lagerbehälters Grafik: Vaillant

Legende
1 Ölbrenner
2 Ölfilter mit Heizölentlüfter
3 Absperrventil
4 Ölleitung (Einstrang)
5 Schnellschlusshahn
6 Saugventil
7 Öllagerbehälter
8 Grenzwertgeber
9 Messleitung
10 Ölstandsanzeiger
11 Entlüftungsleitung
12 Füllleitung
13 Membran-Antiheberventil

Füllleitung
Der Füllstutzen soll außerhalb des Gebäudes liegen, jedoch maximal 30 m vom Standort des Tankwagens entfernt. Die Füllleitung ist mit Gefälle zum Behälter zu verlegen, damit sie leer laufen kann. Es ist ein Anschlussstück für den Füllschlauch mit Verschlusskappe vorzusehen. Der Füllstutzen muss gut zugänglich sein.

Grenzwertgeber
Die Sicherung gegen Überfüllung des Öltanks ist am Tankwagen angebracht. Der Tank wird nur mit einer Vorrichtung, „Grenzwertgeber“ genannt, ausgerüstet, die die Abfüllsicherung auslöst und dabei die Pumpe des Lieferfahrzeuges abschaltet.

Be- und Entlüftungseinrichtung
Jeder Heizöltank muss mit einer Be- und Entlüftungseinrichtung ausgerüstet sein, die nicht absperrbar sein darf, um einen ungehinderten Druckausgleich von Über- oder Unterdruck im Inneren des Tanks wirksam zu ermöglichen (z. B. beim Befüllen des Tanks).

Ölstandsanzeiger
Zur Bestimmung des Tankinhalts bei Batterie- und Kellerbehältern können wegen der geringen Höhe über den Behältern Peilstäbe keine Verwendung finden. Hier kann man mechanische Ölstandsanzeiger, die mit einem Schwimmer versehen sind, direkt auf den Behälter schrauben.
Bei Fertigtanks aus Kunststoff, z. B. Polyethylen, erübrigt sich bei oberirdischer Lagerung diese Maßnahme, da diese transparent sind, und der Ölstand von außen kontrolliert werden kann.

Antiheberventil
Bei Ölfeuerungsanlagen mit höher liegendem Tankölspiegel besteht im Falle einer Leckage in nachgeschalteten Anlagenteilen (z. B. Filterglas defekt) die Gefahr, dass der Ölbehälterinhalt ausgehebert wird und in den Aufstellraum fließt. Um ungewollten Ölaustritt zu verhindern, sollte hinter dem Öltank am höchsten Punkt in die Saugleitung ein Membran-Antiheberventil eingebaut werden. Das Ventil ist durch Federkraft im Ruhezustand gesperrt. Der Unterdruck aus dem Saugbetrieb der Brennerpumpe wirkt auf eine Membranfläche, die über einen Stößel den Sperrkolben anhebt. Während der Brennerlaufzeit bleibt das Ventil geöffnet. Bei einer Undichtigkeit in der Saugleitung reißt der Unterdruck ab, die Membrane gibt daraufhin den Kolben frei und das Ventil wird geschlossen.


WERBUNG