Springe auf Hauptinhalt Springe auf Hauptmenü Springe auf SiteSearch
WERBUNG
WERBUNG
WERBUNG
Dämmung von Zuleitungen einer Fußbodenheizung

Was ist noch praktikabel?

Eine solche Grenze besteht beim Bau von klassischen Fußbodenheizungen. Dieses Gewerk ist im Nachhinein nur schwierig zu korrigieren, kann man doch nicht einfach den Estrich nach erfolgter Einbringung wieder in Luft auflösen. Lesen Sie daher, wie der Bundesverband Flächenheizungen und Flächenkühlungen e. V., kurz BVF, solche Grenzen beschreibt und Ansätze zur praktischen Umsetzung empfiehlt.

Was wurde da thematisiert?

Der BVF hat aktuell ein neues Positionspapier veröffentlicht. Es behandelt die Problematik der Dämmung von durchlaufenden Zuleitungen bei Warmwasser-Fußbodenheizungen – kurz Anbindeleitungen.

Damit geht der Branchenverband konkret auf die bestehenden Unklarheiten in der Energieeinsparverordnung 2016 zu diesem Bereich ein. Das Dokument bringt Fachhandwerkern, Planern sowie allen Beteiligten Klarheit in folgenden Punkten.

Konkrete Punkte

– Begriffsbestimmung und Abgrenzung der durchlaufenden Zuleitungen bzw. Anbindeleitungen
– Dämmpflicht von durchlaufenden Zuleitungen
– Einfluss auf die Regelbarkeit eines Raumes
– Festlegung von Raumtemperaturen
– Unerwünschte Wärmeabgabe von durchlaufenden Zuleitungen
– Möglichkeiten der Dämmung bei Flächenheizungen der Bauart A und B sowie bei Sonderkonstruktionen mit dünnschichtigem Bodenaufbau
– Berechnung bzw. Berücksichtigung der Wärmeleis­tung gedämmter und ungedämmter durchlaufender Zuleitungen

Wo ist das Problem?

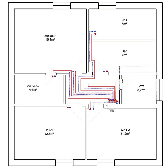
Beim Bau einer klassischen Fußbodenheizung (FBH) in der Etage eines Wohnhauses wird eine strategisch günstige Position für den Verteiler ausgeguckt. Vom Verteiler verlaufen die Anbindeleitungen zu den jeweiligen Räumen dieses Geschosses. Das bedeutet beispielsweise, dass der Flur des Geschosses, weil mittig angelegt, für den Verteiler vorgesehen wird (siehe auch Skizze rechts oben). Werden die Räume des Geschosses beheizt, verlaufen einige Meter Rohr durch diesen Flur, die eigentlich ja nur Zuleitungen sind zur Beheizung des jeweils angeschlossenen Raumes. Diese Rohre, genauer diese Anbindeleitungen, geben natürlich auch Wärme an den Flur ab, der sich entsprechend erwärmt. Der eigentliche Heizkreis des Flures könnte aber aus Gründen der Sparsamkeit durchaus geschlossen sein. Trotzdem wäre eine Erwärmung des Flures zu erwarten.

Würde man die Anbindeleitungen jedoch mit dicker Dämmung versehen, dann bliebe der Flur planmäßig kühler. Eine sparsamere und energetisch günstigere Beheizung des Geschosses ließe sich also ganz eindeutig mit gedämmten Anbindeleitungen erzielen und nicht mit freier Wärmeabgabe dieser notwendigen Leitungen. So weit so gut.

Was ist die Crux bei diesen Gedanken?

Der klassische Fußbodenaufbau einer FBH sieht eine Estrichstärke von 6 cm vor. Bei einer Dicke des verlegten Fußbodenheizungsrohres von 15 mm bliebe noch eine Überdeckung mit Estrich von 45 mm. Würde man dieses Rohr jedoch beispielsweise mit 9 mm oder sogar mit 20 mm Dämmung versehen, bliebe eine Überdeckung von nur noch 27 mm bzw. 5 mm Überdeckung. Das ist praktisch nicht realisierbar. Der Estrichleger würde die Gewährleistung für seinen dünnen Estrich nicht übernehmen wollen. Also können nur Kompromisse und Interpretationen der Verordnungstexte weiterhelfen. Außerdem hilft natürlich auch der gesunde Menschenverstand. Und insbesondere dieser führte zu dem Merkblatt des BVF. Solange wir also keine W-Lan-Anschlüsse für eine FBH zur Verfügung haben, müssen praktikable Lösungen her und müssen entsprechende Absprachen getroffen werden.

Praktikabel ist:

– Die Anbindeleitungen in einem Wellrohr zu führen. Damit lässt sich die Wärmeleistung an den Aufstellraum des Verteilers erheblich verringern.
– Einen Flur in einem Einfamilienhaus nicht mit normkonformen 15 °C anzunehmen, sondern mit 20 °C. Das nimmt anschließend den Schrecken beim Nutzer und führt ihn gar nicht erst in Versuchung zu klagen.
– Im Zweifel einen zweiten Verteiler in einem anderen Raum einzurichten, damit sich die Abwärme nicht nur in einem Raum bemerkbar macht und diesen überhitzt. Dies gilt beispielsweise für einen Vorratsraum, dessen Temperatur nicht zu hoch ansteigen sollte.

Lesen Sie das ausführliche Positionspapier, um tiefer in die Details einzusteigen. Und vergessen Sie nicht: Normen und Verordnungen ersetzen nicht das eigene Denken. Das Posi­tionspapier des BVF steht auf www.flaechenheizung.de kostenfrei als PDF zum Download zur Verfügung.

Ein FBH-Verteiler wird strategisch günstig platziert, also oft zentral im Flur des Hauses. Das bedeutet viele Anbindeleitungen im Flur

Bild: Purmo

Ein FBH-Verteiler wird strategisch günstig platziert, also oft zentral im Flur des Hauses. Das bedeutet viele Anbindeleitungen im Flur
WERBUNG