Springe auf Hauptinhalt Springe auf Hauptmenü Springe auf SiteSearch
WERBUNG
WERBUNG
WERBUNG

Erklär mal: Heizöllagerung im Heizraum

Aufstellung von Feuerstätten und Heizöllagerung im selben Raum

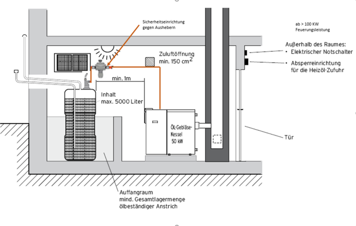
Sind in den Lagerräumen für Heizöl (bis max. 5000 l) Feuerstätten aufgestellt, so sind folgende Richtlinien zu beachten:

– die Feuerstätten müssen außerhalb des Auffangraumes für auslaufendes Heizöl stehen,

– die Feuerstätten müssen einen Abstand von mindestens 1 m zu Lagerbehältern für Heizöl haben.

– ein Antiheberventil am höchsten Punkt der Vorlaufleitung muss vorhanden sein, um ein „Aushebern“ der Öllagereinrichtung zu verhindern. Das Ventil kann als Membranantiheberventil oder auch als elektrisches Magnetventil ausgeführt werden.

– keine Öffnungen gegenüber anderen Räumen. Dicht und selbstschließende Türen sind Pflicht.

– Wird in dem Aufstellraum der Feuerstätte Heizöl gelagert oder ist der Raum für die Heizöllagerung nur vom Aufstellraum aus zugänglich, muss die Heizölzufuhr von der Stelle des Notschalters aus durch eine entsprechend gekennzeichnete Absperreinrichtung unterbrochen werden können. Diese Anforderung gilt nur für Feuerungsleistungen > 100 KW

– Brenner und Brennstoffördereinrichtungen der Feuerstätten müssen durch einen außerhalb des Aufstellraumes angeordneten Schalter (Notschalter) jederzeit abgeschaltet werden können. Neben dem Notschalter muss ein Schild mit der Aufschrift „Notschalter Feuerung“ vorhanden sein. Diese Anforderung gilt nur für Feuerungsleistungen > 100 KW

Planung des Aufstellortes

Bei der Aufstellung von Öl-Gebläsekesseln müssen die Anforderungen an die Aufstellräume gemäß Landesbauordnung und Feuerungsverordnung der jeweiligen Bundesländer beachtet werden.

Zum Download die FeuVO der verschiedenen Bundesländer

WERBUNG