Springe auf Hauptinhalt Springe auf Hauptmenü Springe auf SiteSearch
WERBUNG
WERBUNG
  • Home
  • Alle Artikel zum Thema Heizöl
WERBUNG

Alle Artikel zum Thema Heizöl

Klappt das jetzt mit dem Wärmevorrat, den man im Sommer für den Winter anlegt?
… Wärmespeicherung? 

Spürbare und versteckte Effekte

-

Reicht es aus, wenn wir im Sommer den Überschuss an Wärme speichern und im Winter abrufen? Lesen Sie, wie ich auf diese herausfordernde Frage komme und warum wir dann doch noch ein paar Hürden zur praktischen Umsetzung nehmen müssen.

So besser nicht, denn das Zweistrangsystem hat entscheidende Nachteile gegenüber einem Einstrangsystem
Einstrangsystem in Ölleitungen

Zwei verlegt ist eine zu viel

-

Damit das Heizöl jederzeit als Wärmelieferant zur Verfügung steht, ist es hilfreich, einige Details über das Ölheizsystem zu wissen. Etwa wie das Heizöl vom Tank zum Brenner gelangt.

Meldungen für die SHK-Branche

-

EnergiekostenHaushalte sollten Sparpotenzial und Heizungstausch prüfen

Für Gas-Neukunden im Februar 80 Euro Mehrkosten in durchschnittlicher Wohnung, 155 Euro im Einfamilienhaus / Heizenergieverbrauch durch mildes Wetter gesunken / Keine Mehrkosten für Bestandskunden mit Wärmepumpe

Heizen mit Gas ist...

Ob es sich hierbei um eine effiziente Verbrennung handelt?

Kampf der Brennstoffe

-

Die Haushalte in Deutschland werden zu einem Großteil mittels Erdgas oder Heizöl beheizt. Die durchweg alltagstauglichen Heizungsanlagen der Wohnhäuser sind dabei in der Regel mit speziellen Brennern ausgestattet. Die Verbrennungstechnik ist daher kein Zufallsprodukt. Aber wer kann es denn jetzt...

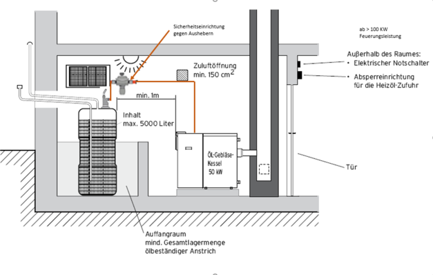
Öl-Feuerung im Heizöllagerraum

Erklär mal: Heizöllagerung im Heizraum

-

Aufstellung von Feuerstätten und Heizöllagerung im selben Raum

Sind in den Lagerräumen für Heizöl (bis max. 5000 l) Feuerstätten aufgestellt, so sind folgende Richtlinien zu beachten:

– die Feuerstätten müssen außerhalb des Auffangraumes für auslaufendes Heizöl stehen,

– die Feuerstätten müssen einen...

Die Rohrdimensionierung beeinflusst die Fließgeschwindigkeit

Geschwindigkeit ist alles!

-

Oder: Wie schnell darf das Öl fließen?

Die Fließgeschwindigkeit in der Saugleitung sollte zwischen 0,2 und 0,5 m/s liegen.

Dies hat folgenden Hintergrund:

Im Heizöl können Luftanteile gelöst sein. Durch das Ansaugen des Heizöls aus dem Tank entsteht je nach Saughöhe in der Ölleitung ein Unterdruck...

Rest- und Abfallstoffe nutzen

Aus der Pommesschmiede in den Heizkessel?

-

Direkt aus der Fritteuse wird man das Frittierfett wohl nicht in einem Brenner verheizen können. Durch den Einsatz von biogenen Rest- und Abfallstoffen zur Herstellung von alternativem Heizöl könnte jedoch der Betrieb von Ölheizungssystemen nachhaltiger und klimaschonender werden. Infrage kommen...

Leichtes Wachstum beim Absatz von Heizungswärmepumpen bei schwungvollem Start und zunehmender Zurückhaltung.

Meldungen aus der SHK-Szene

-

Wärmepumpenabsatz 2019: Es geht verhalten Auswärts!

Es sind nach wie vor die Luftwärmepumpen, die die Tendenz des Marktes bestimmen: 2019 wurden in diesem Segment insgesamt 66.000 Geräte verkauft, das entspricht einer Steigerung von neun Prozent im Vergleich zum Vorjahr. Splitgeräte konnten hierbei...

Meldungen aus der SHK-Szene

-

Heizungstechnik leicht gemacht:Danfoss Online-Plattform bietet praxisnahe Infos für Heizungsbauer

Danfoss stellt unter dem Motto „Heizungstechnik leicht gemacht“ eine neue Online-Plattform für Heizungsbauer vor. Die Plattform richtet sich vor allem an kleinere SHK-Betriebe und bietet in kompakter und...

Einzuhaltende Mindestabstände nach MFeuVO (Muster-Feuerungsverordnung)

Erklär mal: Anforderungen an die oberirdische Lagerung von Heizöl

-

Hierzu gehören nicht nur die im Freien aufgestellten Behälter, sondern auch Behälter in Kellerräumen und anderen unterirdischen Räumen, wenn die Tanks gut und zuverlässig überwacht werden können. Im Regelfall müssen die Behälter in einem dichten und beständigen Auffangraum stehen oder als...

Brennwert WT-Aufbau Bild: Vaillant

Erklär mal: Wohin mit dem Kondensat?

-

Der Wärmetauscher besteht aus mehreren Wärmetauscherelementen, die durch eine Isolierplatte getrennt sind. Die drei Wärmetauscherelemente vor der Isolierplatte werden als „Heizwert-Stufe“ bezeichnet, weil hier nur eine geringe Kondensation stattfindet. Die Wärmetauscherelemente hinter der...

Den Tropfen vernebeln

-

Der Sinn und Zweck einer Ölvorwärmung


Man kann sich in einem Selbstversuch die Backen voller Joghurt packen und diesen mal mit aller Macht durch die gespitzten Lippen pressen. Anschließend wird das Spritzmedium ausgetauscht gegen Milch.




Der Unterschied des selbst fabrizierten Auswurfs ist sehr...

Bestimmt mehr wie 1 Kilo Watt

1 Kilo Watt, Kilowatt oder Kilowattstunde?

-

Leistung und Energie


Hört man den Kollegen zu, die sich über die Einheit Watt unterhalten, ist der tiefe Sinn zeitweise nur schwer zu entdecken. Insbesondere wenn es um das Thema Energie oder Leistung oder schlimmstenfalls um beides geht, werden Watt und Wattstunden in scheinbar beliebiger...

Wer heizt besser ein?

-

Kampf der Brennstoffe


.


Die Haushalte in Deutschland werden zu einem Großteil mittels Erdgas oder Heizöl beheizt. Die durchweg alltagstauglichen Heizungsanlagen der Wohnhäuser sind dabei in der Regel mit speziellen Brennern ausgestattet. Die Verbrennungstechnik ist daher kein Zufallsprodukt. Aber...

Ein bißchen Verbrennungstechnik

-

Ziel der Verbrennung von Heizöl EL ist es, die darin gebundene chemische Energie in nutzbare Wärme umzuwandeln. Hierzu ist mit der


Verbrennungsluft so viel Sauerstoff zuzuführen, dass alle brennbaren Bestandteile des Brennstoffs vollständig umgesetzt werden. Wenn die exakt für diese...

Versau es nicht!

-

Heizöl richtig lagern


.


Ölkatastrophen, wie am Golf von Mexiko, zeichnen ein düsteres Bild von dem, was Öl in der Natur anrichten kann. Aber auch im kleinen Maßstab wird gesündigt. Um die Sicherheit - zumindest für das Heizöllager unserer Kunden - zu beleuchten, werden einige fachliche...

Es geht um Oberfläche

-

Der Sinn und Zweck einer Ölvorwärmung


.


Man kann sich in einem Selbstversuch die Backen voller Joghurt packen und diesen mal mit aller Macht durch die gespitzten Lippen pressen. Anschließend wird das Spritzmedium ausgetauscht gegen Milch.


.




.


Der Unterschied des selbst fabrizierten Auswurfs ist...

Spürbare und versteckte Effekte

-

… Wärmespeicherung?


.


Vorratshaltung hat die Menschheit deutlich nach vorne gebracht. Um im kargen Winter zu überleben haben unsere Vorfahren Kornspeicher angelegt aus denen dann nach und nach etwas entnommen wurde. Der Anlagenmechaniker schlägt sich heute ebenfalls mit einem Problem herum, das mit...

Erklär mal: Taupunkt

-

Je nach Brennstoff ist in den Heizgasen mehr oder weniger Wasser in Form von Dampf enthalten. Bei der Verbrennung von Erdgas entstehen bis zu 1,5 Liter Wasser in Dampfform pro Kubikmeter Erdgas, bei Heizöl sind es bis zu 0,9 Liter Wasser pro Liter Heizöl.


Dieser Dampf enthält aber relativ viel Wärme...

Bioöl vs. Heizöl

-

Der Einsatz effizienter Öl-Brennwert Heiztechnik kombiniert mit nachhaltiger Produktion der Biobrennstoffe bietet eine Perspektive für die Schonung von Ressourcen und das Erreichen der nationalen Klimaschutzziele. Dies ist um so wichtiger, da Erdöl nach wie vor der wichtigste Energieträger ist und...

Heizöl ist nicht gleich Heizöl

-

Heizöle nach DIN 51603- 1 und DIN V 51603-6


Grundsätzlich sind drei Heizölsorten zu unterscheiden:


–– Heizöl EL Standard, das sogenannte Standard Heizöl EL (DIN 51603- 1)


–– Heizöl EL Schwefelarm, das schwefelarme Heizöl EL (DIN 51603- 1)


–– Heizöl EL Alternativ, z. B. das sogenannte Bioheizöl, (DIN...

Wo steckt mehr drin?

-

Die Frage nach dem Energieinhalt von Brenstoffen hat entscheidenen Einfluss auch auf die Lagerhaltung. Während ein Kilogramm Öl ca. 10kwh/kg an Energieinhalt besitzt sind dies bei Pellets nur knapp die Hälfte. Da muss schon mal der Lagerraum doppelt so groß bemessen sein für eine Heizsaison.


Verglei...

Erklär mal: Heizöllagerung Teil 1

-

Heizöl darf gelagert werden




  • in Wohnräumen

  • im Aufstellraum des Heizkessels

  • in Heizöllagerräumen



  • In aller Kürze bedeutet das:


    Die maximal zulässige Lagermenge in Wohnräumen beträgt 100 Liter bei Lagerung in Heizöllagertanks und insgesamt 40 Liter bei Lagerung in Kanistern. Im Aufstellraum des...

    Erklär mal: Schwefelarmes Heizöl

    -

    Schwefelarmes Heizöl zeichnet sich neben einem äußerst geringen Schwefelgehalt durch eine sehr saubere und nahezu rückstandsfreie Verbrennung aus. Es gewährleistet eine konstant hohe Energieausnutzung und senkt daher den Heizölverbrauch. Zugleich verringert es den Wartungsaufwand von Kessel und...

    Nachgedacht?

    -

    Schaut euch doch bitte mal das Video an. Im letzten Beispiel wird folgende Rechnung aufgemacht:


    Das Gebäude wurde wärmegedämmt der Ölverbrauch sank auf 6.000 Liter pro Jahr. Vor der Sanierung waren es 12.000 Liter Heizöl. Heizöl EL hat einen Heizwert von 10kw/h pro Liter.


    Die installierte Luft...

    WERBUNG