Springe auf Hauptinhalt Springe auf Hauptmenü Springe auf SiteSearch
WERBUNG
WERBUNG
WERBUNG
Optimale Trinkwasserinstallation in der Stockwerksverteilung

Durchschleifen? Ja bitte!

Mit durchströmten U-Wandscheiben oder U-Unter­putz-Armaturenanschlüssen kann einer Stagnation des Trinkwassers vorgebeugt werden. Wie sich eine Reihen- oder Ringinstallation im Vergleich zur T-Stück-Installation auf den Wasseraustausch oder die Einhaltung von Komfortkriterien auswirkt, zeigt dieser Artikel. Die Vermeidung von überdimensionierten Trinkwasserinstallationen ist eines der Hauptziele der DIN 1988-300. Die Absenkung der Spitzenvolumenströme sowie die Verwendung produktspezifischer Mindestfließdrücke und Druckverlustbeiwerte sollen dazu beitragen, dass der Wasseraustausch optimiert und das Trinkwassersystem weniger stagnationsanfällig wird. Die Forderung nach schlankeren Rohrnetzen ist auch in anderen technischen Regelwerken zu finden. Zum Beispiel in der VDI-Richtlinie 6023 „Hygiene in Trinkwasserinstallationen“. Darin heißt es: „Überdimensionierungen sind sowohl bei Trinkwasserleitungen als auch bei Trinkwasserspeichern/Apparaten zu vermeiden.“ Neben der Dimensionierung treten noch zwei weitere Hygieneaspekte in den Vordergrund: Der optimale Wasseraustausch zur Vermeidung von Stagnation als größtes Verkeimungsrisiko in einer Trinkwasserinstallation sowie die Temperaturhaltung für Kalt- und Warmwasser.

Die Auswahl der Installationsart und die Dimensionierung, in Anlehnung an die  Forderungen der VDI-Richtlinie 6023, kann folgendermaßen heruntergebrochen werden:

Auswahlkriterien

a) Druckverluste reduzieren und

b) damit kleinere Rohrdurchmesser und Wasservolumen ermöglichen.

c) Sicher für den Wasseraustausch in allen Leitungsteilen sorgen und

d) die Temperaturhaltung in Kalt- und Warmwasser sicherstellen.

Druckverlust und Rohrdimensionierung

Bei der Druckverlustoptimierung zeigt sich, dass der alleinige Fokus auf Zeta-Werte einzelner Installationssysteme nicht zu dem Ziel führt, optimale Rahmenbedingungen für einen häufigen Wasseraustausch zu schaffen. Das größere Optimierungspotenzial liegt in der Auswahl einer geeigneten Installationsart. So bieten Ringleitungen einen deutlich geringeren Druckverlust bei kleineren Dimensionen. Und kleinere Dimensionen sorgen nebenbei auch noch für eine kostengünstigere Installation, bezüglich Rohrmaterial, Fittings, Dämmung und Befestigungen.

Temperaturhaltung

Bei der Temperaturhaltung in Trinkwassersystemen ist – neben der normgerechten Dämmung – die thermische Trennung von Kalt- und Warmwasserleitungen besonders zu beachten. Auch die Dimensionierung und damit das Warmwasservolumen spielen dabei wieder eine bedeutende Rolle. Entsprechend DVGW-Arbeitsblatt W 551 sind Warmwasser-Stockwerks- und Einzelzuleitungen (Fließwege) mit einem Wasservolumen > 3 l mit einer Zirkulation bis zur Entnahmestelle auszustatten. Diese Forderung gilt der Temperaturhaltung innerhalb der Warmwasserleitungen, stellt aber für die Installation neue Probleme im Kaltwasserbereich dar. So erwärmen sich z. B. die Hohlräume einer Vorwandinstallation. Beim Durchschleifen der Zirkulation kommt es sogar zur Erwärmung der kaltwasserführenden Armaturenteile.

Komfortkriterien

Dazu gilt es, die vertraglich zu vereinbarenden Komfortkriterien für die Warmwasserbereitstellung – nach VDI-Richtlinie 6003 – zu berücksichtigen. Wichtigster Punkt: Welche Auswirkungen haben die einzelnen Installationsarten auf die Ausstoßzeiten für Warmwasser?

Unter diesen Gesichtspunkten werden die drei Installationsarten beispielhaft am typischen Grundriss eines Mehrfamilienhauses mit einem Bad (Vollausstattung) und benachbarter Küche dargestellt.

Typischer Grundriss im Mehrfamilienhaus. Ein Bad mit angrenzender Küche. Direkt neben dem WC als Hauptverbraucher liegt der Versorgungsschacht.

Typischer Grundriss im Mehrfamilienhaus. Ein Bad mit angrenzender Küche. Direkt neben dem WC als Hauptverbraucher liegt der Versorgungsschacht.

Aufbau der Installationsvarianten

Für das in Bild 1 gezeigte Bad mit angrenzender Küche wurde die Warmwasserinstallation jeweils als T-Stück-, Durchschleif-Reihen- und als Durchschleif-Ringinstallation nach DIN 1988-300 dimensioniert. Für alle Stockwerksinstallationen liegt der gleiche Druck an den Stockwerksabsperrungen an. So sind Ergebnisse direkt miteinander vergleichbar. Ungünstigster Fließweg: die Dusche. Für deren Nutzung sollen die Auswirkungen der einzelnen Installationsarten verglichen werden.

T-Stück-Installation

Klassische T-Stück-Installation

Klassische T-Stück-Installation
Tabelle 1: T-Stück-Installation

Tabelle 1: T-Stück-Installation

Noch häufig kommt die T-Stück-Installation zum Einsatz. Für sie sprechen die vordergründig günstigeren Kosten und die traditionelle Verlegemethode. Nachteil: Große Teile der Installation werden nicht durchströmt, obwohl Wasser gezapft wird. In größeren Installationen (> 3 l bis zum ungünstigsten Fließweg), in denen die Zirkulation gem. DVGW-Arbeitsblatt W 551 bis zur letzten Entnahmestelle geführt werden muss, stellen diese Stagnationen ein erhöhtes Verkeimungsrisiko dar. Die Zirkulationsleitung fördert dauerhaft Trinkwasser im Temperaturbereich von 58 – 60 °C und erwärmt die stagnierende Kaltwasserleitung in der System-Vorwand/Trockenbauwand. Günstiger kann bei dieser Installationsart sogar teurer werden. Nämlich dann, wenn aufgrund der Installa­tionsart ein Legionellenbefund vorliegt.

Durchschleif-Reiheninstallation

Durchschleif-Reiheninstallation

Durchschleif-Reiheninstallation
Tabelle 2: Durchschleif-Reiheninstallation

Tabelle 2: Durchschleif-Reiheninstallation

Bei dieser Installationsart sollte der Hauptverbraucher immer am Strangende angeschlossen werden. Das gewährleistet einen größtmöglichen Wasseraustausch. Dies ist für Kaltwasser das WC und für Warmwasser der WT. In unmittelbarer Nähe zum WC liegt meistens die Abwasser-Fallleitung, um die sichere Entwässerung zu ermöglichen. In diesem Versorgungsschacht finden sich auch die Trinkwasserleitungen, sodass die Installation vom Schacht ausgehend zunächst die Küchenspüle, Badewanne und Dusche über entsprechende Durchschleif-Wandscheiben erschließt, bevor die Leitung an den Waschtisch und abschließend an den Hauptverbraucher (WC) angeschlossen wird.

Die Reiheninstallation ermöglicht den kompletten Warmwasseraustausch allerdings nur, wenn die Mischbatterie am Waschtisch regelmäßig für längere Zeit betätigt wird. Wird, wie dargestellt, lediglich die Duscharmatur betätigt, werden erhebliche Rohrnetzteile nicht durchströmt. Besonders nachteilig wirkt sich hier die hohe Wassermenge aus, die > 3 l liegt und daher ein Einschleifen der Zirkulation erforderlich macht. Dies bringt weitere Nachteile mit sich, da für eine thermische Entkopplung der kalt- und warmgehenden Leitungen gesorgt werden muss, um eine Verkeimung der Installation durch Erwärmung des Kaltwassers über 25 °C zu vermeiden. Dazu verursacht die Reihenschaltung der U-Wandscheiben einen hohen Druckverlust, sodass  beim vorgegebenen Druck eingangsseitig größere Rohrdimensionen erforderlich werden (32 x 3,2 mm). Durchschleif-Reiheninstallationen sollten daher eher bei einer geringen Anzahl von Zapfstellen und einer möglichst genauen Definition der Hauptverbraucher eingesetzt werden.

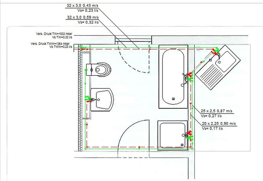
Durchschleif-Ringinstallation

Durchschleif-Ringinstallation

Durchschleif-Ringinstallation
Tabelle 3: Durchschleif-Ringinstallation

Tabelle 3: Durchschleif-Ringinstallation

Eine Alternative zur Reihen- ist die Ringinstallation. Wie es das Bild zur Durchschleif-Ringinstallation zeigt, liegt das WC als Kaltwasser-Hauptverbraucher direkt neben dem Einspeisepunkt der Kaltwasserinstallation. Mit einem T-Stück, etwa 0,5 m Rohr und einer Durchschleif-Wandscheibe lässt sich der Ring einfach schließen. Die Aufteilung des Volumenstroms auf zwei Leitungen bringt gegenüber der Durchschleif-Reiheninstallation deutliche hydraulische und damit hygienische Vorteile.

Die Parallelschaltung von Widerständen im Rohrnetz und die Aufteilung des Volumenstroms auf zwei Fließwege führen zu einer Druckverlust- und Hygieneoptimierung und zur Minimierung des Rohrinhaltes der Installation. Der Warmwasserinhalt liegt insgesamt deutlich unter 3 l. Damit kann mit dieser Installationsart bei der hier gezeigten Vollausstattung ein Einschleifen der Zirkulationsleitung vermieden werden.

Der häufig geäußerte Vorbehalt gegenüber Ringleitungsinstallationen, dass diese den Wasserinhalt in der Stockwerksleitung auf über 3 l erhöhen und damit das Einschleifen der Zirkulation erst notwendig wird, ist bei näherer Betrachtung also falsch. Wie die Berechnung der Ausstoßzeiten gemäß der VDI Richtlinie 6003 zeigt, ergeben sich gegenüber der ­T-Stück-Installation und der Durchschleif-Reiheninstallation keine signifikanten Änderungen. Die Komfortkriterien werden auch mit der Durchschleif-Ringinstallation erfüllt.

DICTIONARY

überdimensionieren = to oversize
T-Stück = T-fitting
Druckverlust = pressure loss
Potenzial = potential, capability

Fazit

Das Ziel einer Rohrnetzprojektierung sollte immer sein, durch kleinstmöglich dimensionierte Ringleitungen das Wasservolumen möglichst gering zu halten. Ein wichtiger Vorteil der Ringinstallation liegt in der Flexibilität der Nutzung. Das Warmwasservolumen wird immer voll ausgetauscht, egal welche Warmwasser-Armatur betätigt wird. Daneben kann das Einschleifen von Zirkulationsleitungen, und damit eine Erwärmung von Kaltwasserleitungen durch parallel laufende Zirkulationsleitungen, vermieden werden.

Matthias Hemmersbach

WERBUNG