Bereits seit über zwei Jahren ist Geberit ProPlanner in zwei Versionen eine vertraute Software für den Installateur und Planer. Die Software umfasst die Rohrleitungssysteme Trinkwasser, Abwasser und Heizung, die Sanitärwandsysteme Duofix und GIS sowie die Druckentwässerung Pluvia fürs Dach.
ProPlanner Light* ist für die Grobplanung, die ProPlanner Vollversion* ermöglicht die Konzept- und Detailplanung.
Mit Ausgabedatum 1. Mai 2009 ist in beiden Versionen der aktuelle Stand im Produktangebot berücksichtigt sowie eine hohe Formstückgenauigkeit erzielt worden. Darüber hinaus galt es in den letzten Monaten die im Hintergrund ablaufenden Berechnungsprogramme zu aktualisieren und noch rationeller arbeiten zu lassen.
       
    
Der Anwender profitiert nur davon: Die Nutzerebene hat das gewohnte Erscheinungsbild beibehalten. Die intuitive Bedienungsführung arbeitet in leicht nachvollziehbaren Programm-schritten und kann gleichermaßen von Alt- und Neuanwendern genutzt werden. Zahlreiche Erläuterungen über Hilfe-Funktion und Einstiegsfilme können dafür zur Unterstützung angeklickt werden.
       
    
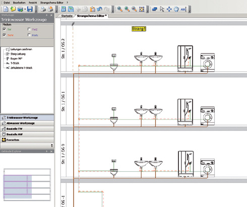
Zu Beginn eines neuen Projekts lässt sich mit wenigen Mausklicks ein grober Plan der erforderlichen Installation im Fließweg Übersichtsfenster erstellen – diese Fähigkeiten haben die kostenlose Version ProPlanner Light bis jetzt schon tausendfach unter die Fachleute gebracht. Mit wenigen weiteren Klicks ist eine komplett dimensionierte und berechnete Kostenschätzung oder das vollständige Leistungsverzeichnis mit hohem Präzisionsgrad angefertigt.
       
    
Die ProPlanner Vollversion baut auf der Light-Version auf und vermag durch einzelne Software-Module sehr detailliert auf die Ver- und Entsorgungssysteme einzugehen. Nur in der Vollversion ist die Berechnung VDI+ für die Pluvia-Druckentwässerung enthalten.
Seit Mai steht die neue Version ProPlanner Light zum Download bereit!
Alternativ können Sie ProPlanner Light auf Datenträger per Telefon unter 0 75 52/934-888 oder
per E-Mail an: technik-telefon@geberit.com bestellen.
(*Light)Als kostenlose CD-ROM mit Geberit ProPlanner Light 2009
(*Vollversion) Als DVD für Geberit ProPlanner 2009 (lizenziert)
 
     
     
     
     
     
    