Springe auf Hauptinhalt Springe auf Hauptmenü Springe auf SiteSearch
WERBUNG
WERBUNG
WERBUNG

Was bleibt mir denn noch?

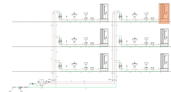
Trinkwasserrohrnetzberechnung

Die Eingangsfrage hört sich schon fast verzweifelt an. Sie umschreibt aber das, was die Dimensionierung von Trinkwasserrohrnetzen ausmacht. Das hört sich wichtig an, ist auch wichtig, aber zum Glück auch durchaus durchschaubar.

Du duscht und der Anlagenmechaniker kümmert sich um Hygiene und Komfort
(Bild: thinkstock)
Du duscht und der Anlagenmechaniker kümmert sich um Hygiene und Komfort (Bild: thinkstock)

So klein wie möglich, so groß wie nötig ist eine Devise die man zur Dimensionierung von Trinkwasserleitungen ausgeben kann. Einerseits soll man nämlich das Geld des Kunden nicht unnötig raushauen und schon alleine deshalb nur die notwendige Rohrdimension vorsehen. Ein wichtigerer Grund für eine angemessene Dimensionierung liegt aber in der Anforderung an die Hygiene einer Trinkwasserversorgung. Würde man einen Waschtisch mit einer Zuleitung von 28 Millimeter anschließen, so könnte das auf Dauer zur extremen Verkeimung führen. Das Wasser würde sich dann nämlich bei einer Zapfung nur in der Mitte des Rohres und dann auch noch sehr langsam bewegen. Schon nach kurzer Zeit würde sich daher ein dicker Biofilm bilden, der zum Rückzugsgebiet und Brutstätte für Legionellen bestens geeignet wäre. Wie also dimensioniert man ein solches System korrekt?

Die Basis ist der Druck

Zwei baugleiche Häuser sollen zum Vergleich herangezogen werden. Das eine liegt in direkter Nähre zum Wasserversorger und dessen riesiger Trinkwasserpumpe. Das andere Haus liegt in zwanzig Kilometer Entfernung und auf einem Berg. An diesem extremen Beispiel wird deutlich, dass der Versorgungsdruck für die beiden Häuser sehr unterschiedlich sein kann. Beide würden sicherlich noch den gleichen Wasserzähler montiert kriegen und in Fließrichtung hinter dem einen Zähler, nahe am Versorger, läge der Druck bei satten 5000 mbar, während im entfernten Haus auf dem Berg der Druck vielleicht nur noch 1500 mbar beträgt. Es dürfte klar sein, das bei einer völlig identischen Rohrdimension in beiden Häusern die Dusche im ersten Haus einen Regentanz ermöglicht, während die Dusche im anderen Haus noch nicht einmal das Shampoo aus den Haaren entfernt. Der Startdruck ist also sehr wichtig und sollte daher, falls nicht schon bekannt, beim Wasserversorger erfragt werden.

Welche Rohrdimension zum jeweiligen Objekt passt kann man errechnen
(Bild: thinkstock)
Welche Rohrdimension zum jeweiligen Objekt passt kann man errechnen (Bild: thinkstock)

Sind weitere Zähler im Haus?

Der erste Zähler im Hause wird vom Versorger gestellt und der verbleibende Druckverlust hinter diesem Zähler wird gewissermaßen als Startdruck angesetzt. Sind weitere Wasserzähler eingebaut, so werden deren Widerstände ebenfalls für den jeweiligen Fließweg berücksichtigt. Dies ist regelmäßig in Mehrfamilienhäusern der Fall. Eine einzelne Wohnung, die dann über jeweils einen (PWC) oder zwei Wasserzähler (PWC + PWH) versorgt wird erfährt durch diesen Einbau natürlich auch eine Bremsung des Wasserschwalls.

Höhe braucht Druck

Wasser läuft nicht freiwillig bergauf, das ist bekannt. Um also beispielsweise eine Dusche vom Hauswasseranschluss ausgehend versorgen zu können, benötigt man Druck zur Überwindung der Höhendifferenz bis zum entsprechenden Duschkopf. Eine einfache Dusche im Erdgeschoss (EG) eines Hauses und vielleicht drei Meter über dem Hausanschluss lässt sich einfacher versorgen als die baugleiche Dusche im dritten Obergeschoss (OG) und angenommenen 12 Meter Höhendifferenz. Die Umrechnung ist sehr einfach, da man für die Höhendifferenz von 10 Meter ziemlich genau 1000 mbar Druck benötigt senkt sich der Druck im eben beschriebenen EG um 300 mbar und im 3. OG um 1200 mbar.

Apparate und Rückflussverhinderer bremsen

Ein gerades Stück Rohr bremst einen bewegten Wasserstrom. Dies ist unter anderem auf die Reibung zwischen den Wassermolekülen und Rohrwandungen zurückzuführen. Lenkt man das Wasser jedoch zusätzlich noch um die Ecke oder durch eine Einschnürung verstärkt sich dieser Bremseffekt. Daher sind Apparate in Trinkwasserinstallationen ebenfalls zu berücksichtigen. Dazu zählt beispielsweise ein Filter oder ein Rückflussverhinderer, aber auch Trinkwassererwärmer oder gegebenenfalls eine Wasseraufbereitungsanlage. Das Durchfließen dieser Apparate nimmt zusätzlich den Schwung aus dem Wasser, kostet also gewissermaßen die im Druck enthaltene Energie.

Der ungünstigste Verbraucher ist meistens eine Dusche im obersten Geschoss
(Bild: IBH)
Der ungünstigste Verbraucher ist meistens eine Dusche im obersten Geschoss (Bild: IBH)

Fließen soll es auch noch

Der Zweck einer Dusche ist nun mal, dass man sich duscht und nicht nur mit Wasser beträufelt. Also wird für den Austritt des Wassers eine gewisse Restenergie vorausgesetzt. Diese wird als Mindestfließdruck bezeichnet und beträgt für eine Dusche beispielsweise 1000 mbar für eine Waschmaschine hingegen nur 500 mbar bar. Dieser Fließdruck wird bezogen auf den Mindestdurchfluss. Das bedeutet, dass dieser Druck messbar wäre, bei der Entnahme von 0,15 Liter pro Sekunde (l/s) bei einer Dusche oder entsprechend 0,15 l/s bei einer Waschmaschine.

Was bedeutet das jetzt?

Für die Rohrnetzdimensionierung bedeutet das alles zusammengetragen folgendes:

Gestartet wird mit dem Druck hinter dem ersten Wasserzähler. Um das Rohrnetz zu durchströmen kann man nur den Druck verwenden, der letztlich übrig bleibt.

Geht man von einem Mehrfamilienhaus aus, so schaut man sich jenen Verbraucher an, der besonders schwierig zu versorgen sein wird. Das ist oft eine Dusche (hoher Mindestfließdruck) im obersten Geschoss (größte Höhendifferenz). Auf dem Weg zu dieser Dusche zieht man von dem Startwert alles ab, was ohnehin an Druck „vernichtet“ wird.

Beispiel:

Startwert: 4000 mbar

Druckverl. Stockwerkszähler: 200 mbar

Druckverl. aus Höhendifferenz von 10 Meter: 1000 mbar

Druckverl. aus Apparaten und Rückflussverhinderern: 400 mbar

Mindestfließdruck für Dusche: 1000 mbar

daraus folgt dann:

Start: 4000 mbar

Stockwerksz.:  -200 mbar

Höhendiff.: -1000 mbar

App. und RV: -400 mbar

Mindestfl.: -1000 mbar

Restdruck = 1400 mbar

Um den Weg vom Startpunkt zum Anschluss dieses Verbrauchers zurückzulegen, kann 1400 mbar an Druck verbraten werden.

Auszug aus einer Druckverlusttabelle zur Ermittlung eines passenden 
Rohrdurchmessers
Auszug aus einer Druckverlusttabelle zur Ermittlung eines passenden Rohrdurchmessers

Wie wird verbraten?

Der Druckverlust auf dem Weg vom Startpunkt zum Verbraucher kann aufgebraucht werden in dem eingebauten Rohrverlauf. Dicke Rohre verursachen geringere Druckverluste als dünne Rohre, bei ansonsten gleichem Volumenstrom. Daher schaut man sich die Strecke an auf der dieser Druckverlust von zusammen 1400 mbar zustande kommen darf. Auf diesem Weg sind mit Sicherheit auch noch Winkel und T-Stücke verbaut. Diese Bauteile rufen einen höheren Druckverlust hervor als ein gerades Stück Rohr. Im ersten Ansatz schätzt man diesen Anteil für Formstücke ganz einfach nur. Ist die Leitung stark verzweigt und mit vielen Winkeln versehen schätzt man vielleicht 60 % für diese Verluste. Ist das Netz nur gering verzweigt schätzt man gegebenenfalls nur auf 40 %. Der Rest steht dann aber nur für das Rohr zur Verfügung. Nehmen wir an, dass das Netz mäßig stark verzweigt ist, und ein Wert von 50 % für diese Einzelwiderstände angesetzt wird, dann bleibt 50 % von 1400 mbar also 700 mbar zur Dimensionierung des Rohres übrig. Ist die Strecke zu dem anvisierten Verbraucher dann beispielsweise 20 Meter lang, dann dürften theoretisch 700 mbar geteilt durch 20 Meter also 35 mbar pro laufendem Meter (mbar/m) Rohr verbraucht werden.

Und nun?

In Tabellen oder Diagrammen sind Druckverluste von Rohren den jeweiligen Durchflüssen gegenübergestellt. Man pickt sich jetzt für jede Strecke mit einem Volumenstrom eine entsprechende Rohrdimension heraus die den gewünschten Eigenschaften entspricht. Wollte man beispielsweise in einer Teilstrecke 0,5 Liter pro Sekunde an Wasser transportieren bei 35 mbar/m , so hätte man aus dem Ablesebeispiel die Wahl zwischen einem 18-er Rohr bei 45,7 mbar/m oder dem 22-er Rohr mit 15,7 mbar/m. Eine Punktlandung genau auf dem Wert den man sich vorgenommen hat wird es wohl nur selten geben. Mal überschreitet man den Wunschwert und in einer anderen Teilstrecke unterschreitet man. Zum Schluss muss natürlich noch das Ziel erreichbar sein, nämlich die Einhaltung der 700 mbar auf der gesamten Strecke.

Jetzt kann man sich noch fragen, wie man auf die entsprechenden Volumenströme kommt, aber das ist ein anderes interessantes Thema, demnächst im Web unter www.sbz-Monteur.de

WERBUNG