Springe auf Hauptinhalt Springe auf Hauptmenü Springe auf SiteSearch
WERBUNG
WERBUNG
WERBUNG

Jeden Tag das Rad neu erfinden?

Hydrauliken in Sekunden

Der Anlagenmechaniker reagiert auf vielfältige Anforderungen und setzt dabei sein Know-how ein. Das betrifft auch die hydraulische Anbindung von Komponenten zur Wärmebereitstellung.

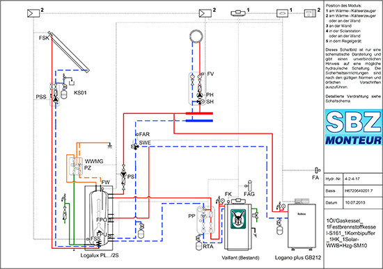
Diese Zeichnung stammt ursprünglich aus der Hydraulikdatenbank von Buderus
(Bild: Buderus/Held)
Diese Zeichnung stammt ursprünglich aus der Hydraulikdatenbank von Buderus (Bild: Buderus/Held)

Schlimmstenfalls sind diese Komponenten nur mit Rohren untereinander verbunden und es stellt sich ein Strömungsverlauf nach dem Zufallsprinzip ein (kein Know-how). Bestenfalls ist die Hydraulik genau den Anforderungen der eingebundenen Komponenten angepasst (gutes Know-how). Sie werden sehen, dass beide Varianten in der Planung in etwa denselben Zeitaufwand bedeuten. Glauben Sie nicht? Dann lesen Sie.

Fallbeispiel

Für ein Einfamilienhaus mit Vaillant-Gaskessel im Keller soll die bestehende Heizungsanlage erweitert werden. Ein Festbrennstoffkessel (Buderus) soll als zusätzlicher, ökologischer Energielieferant in das bestehende System eingebunden werden. Zusätzlich werden einige Quadratmeter Solarkollektor (Buderus) aufs Dach gebracht und sind ebenfalls zu integrieren.

Einige (wenige) Cracks lächeln jetzt kurz und haben das komplette und funktionsfähige Schaltbild vor Augen. Ich nicht. Zwar ist mir bekannt, wie die Komponenten bestenfalls harmonieren. Aber mir fehlt der Geistesblitz diese Dinge mal eben zu skizzieren, die Teile zu bestellen und dann auch noch einwandfrei zu verrohren und zu verdrahten. Spätestens bei dieser Erkenntnis hole ich mir Rat von außen. Die Anlagen, die ich als Sachverständiger zu sehen bekomme taugen jedenfalls nicht als Anregung. Ich werde nämlich als Sachverständiger nie angerufen mit der Aufforderung: „Schauen Sie mal drüber, die Anlage funktioniert supergut, ich möchte dem Heizungsbauer nachträglich noch eine Prämie zahlen.“

Was ist zu tun?

Für mich ist es in einem solchen Fall hilfreich, ins Netz zu wandern und auf einer verlässlichen Seite eines Marktpartners nachzuschlagen. Und der liefert mir tatsächlich zumindest eine Anregung. Ein Beispiel unter mehreren Anbietern findet sich bei Buderus. Dort grenze ich aus einer Vielzahl von möglichen Zeichnungen die infrage kommenden Lösungsmöglichkeiten ein. Knapp drei Sekunden später habe ich einen Vorschlag auf dem Bildschirm. Das digitale Format liegt als pdf-Datei (Beispiel: schema.pdf) vor. Diese Datei drucke ich noch aus und vertiefe mich in die dargestellten Möglichkeiten. Habe ich eine abweichende Anforderung oder Idee zu dem Buderus-Vorschlag, dann hat man mir eine weitere hilfreiche Datei mitgeliefert. Für mein CAD-Software, also ein Programm zum Erstellen und Bearbeiten von digitalen Zeichnungen, liegt eine Zeichnung als dwg-Datei (Beispiel: schema.dwg) bei.

CAD-Programme sind erschwinglich und hilfreich.
(Bild: Held)
CAD-Programme sind erschwinglich und hilfreich. (Bild: Held)

Ein Vergleich

Ich möchte einen Musterbrief schreiben der mit allen Inhalten gespickt ist, die ich einem säumigen Zahler schreiben möchte.

Erste Möglichkeit: Ich lade mir einen solchen Musterbrief mit verlässlichen Standardformulierungen aus dem Netz und öffne dieses Dokument mit dem Acrobat Reader und drucke dieses aus. Dann setze ich per Hand die Adresse ein, unterschreibe und ab damit...

Das entspricht der Übernahme der pdf-Datei.

Zweite Möglichkeit: Ich lade mir einen solchen Musterbrief aus dem Netz und öffne die Datei in einem Büro-Programm für Textverarbeitung (MS Word oder eine kostenfreie Open Office Version). Hier kann ich noch textliche Veränderungen vornehmen und den Briefkopf komplett am PC ausfüllen und ab damit...

Das entspricht der Übernahme und Überarbeitung der dwg-Datei

Beide Methoden sind zielführend und effizient. Die Variante mit der änderbaren Datei, also der CAD-Vorlage bedingt natürlich, dass ich einerseits ein solches Programm besitze und auch damit umgehen kann. Aber das lernt man in den Grundzügen sehr schnell. Bitte bedenken Sie, dass wir im SHK-Handwerk ja nicht die Motorsteuerung eines neu zu konstruierenden V6-Motors zeichnen müssen. Es geht in der Regel „nur“ um ein paar Striche und Symbole die auf einem bestehenden Vorschlag verschoben werden.

Ist das dann mogeln?

Unsere Marktpartner bieten diese Zeichnungen sicherlich nicht zum Spaß an. Natürlich möchte man bei Buderus die eigenen Produkte sicher geplant und montiert wissen. Dafür gibt es die erprobten Vorschläge. Und die CAD-Datei wird sicherlich angeboten, um darin Anpassungen vornehmen zu können. Und letztlich muss der Erbauer einer Anlage, also in diesem Falle ich als Planer, die Verantwortung für die Funktion und Wirtschaftlichkeit übernehmen. Die Hilfen zur Erstellung zeitgemäßer Hydrauliken stellen die Marktpartner bereitwillig zur Verfügung. Also nutze ich diese Techniken um das Rad nicht an jedem Tag neu erfinden zu müssen. Ausnutzen werde ich meine Partner nicht.

Ich mogele also nicht, denn für die Richtigkeit dieser Zeichnung hafte ich anschließend und nicht Buderus.

Der Autor

WERBUNG